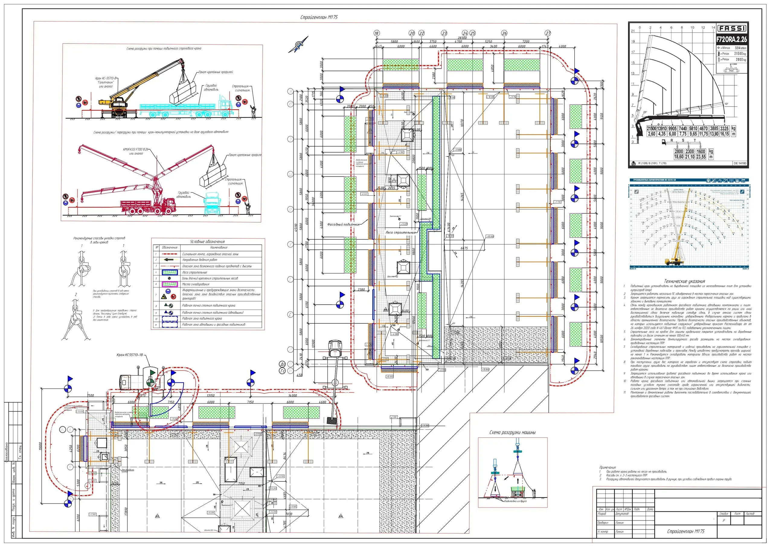
Пример разработанного ППР на фасадные работы
Сотрудниками компании ППР48 был изготовлен ППР на фасадные работы. В проекте описаны все этапы работ, требования к материалам и оборудованию, а также необходимые меры безопасности.
В ППР на фасадные работы указаны следующие пункты:
- Описание мероприятий, которые будут проводиться на фасаде здания.
- Требования к материалам и оборудованию. Описаны необходимые характеристики материалов, их количество и маркировка.
- Описание процесса проведения монтажа. Описаны все этапы работ, начиная от подготовки рабочей зоны и заканчивая окончанием СМР.
- Меры безопасности. В проект на фасадные работы описаны все меры безопасности, которые необходимо предпринимать при проведении работ. Это меры по обеспечению безопасности сотрудников и окружающих людей, а также меры по защите самого здания.
При составлении проекта были учтены все особенности конкретного здания и проводимых мероприятий. Он выполнен с учетом всех норм и правил безопасности, а также соответствовал требованиям заказчика.





























