Технологическая карта на гидроизоляцию фундамента
Технологическая карта на устройство гидроизоляции состоит из разделов, в которых содержатся указания по производству работ ручным, механизированным или комбинированным способом. Выбор методики зависит от таких факторов, как объемы работ, вид гидроизоляции, стесненность условий, сроки поставленных целей.
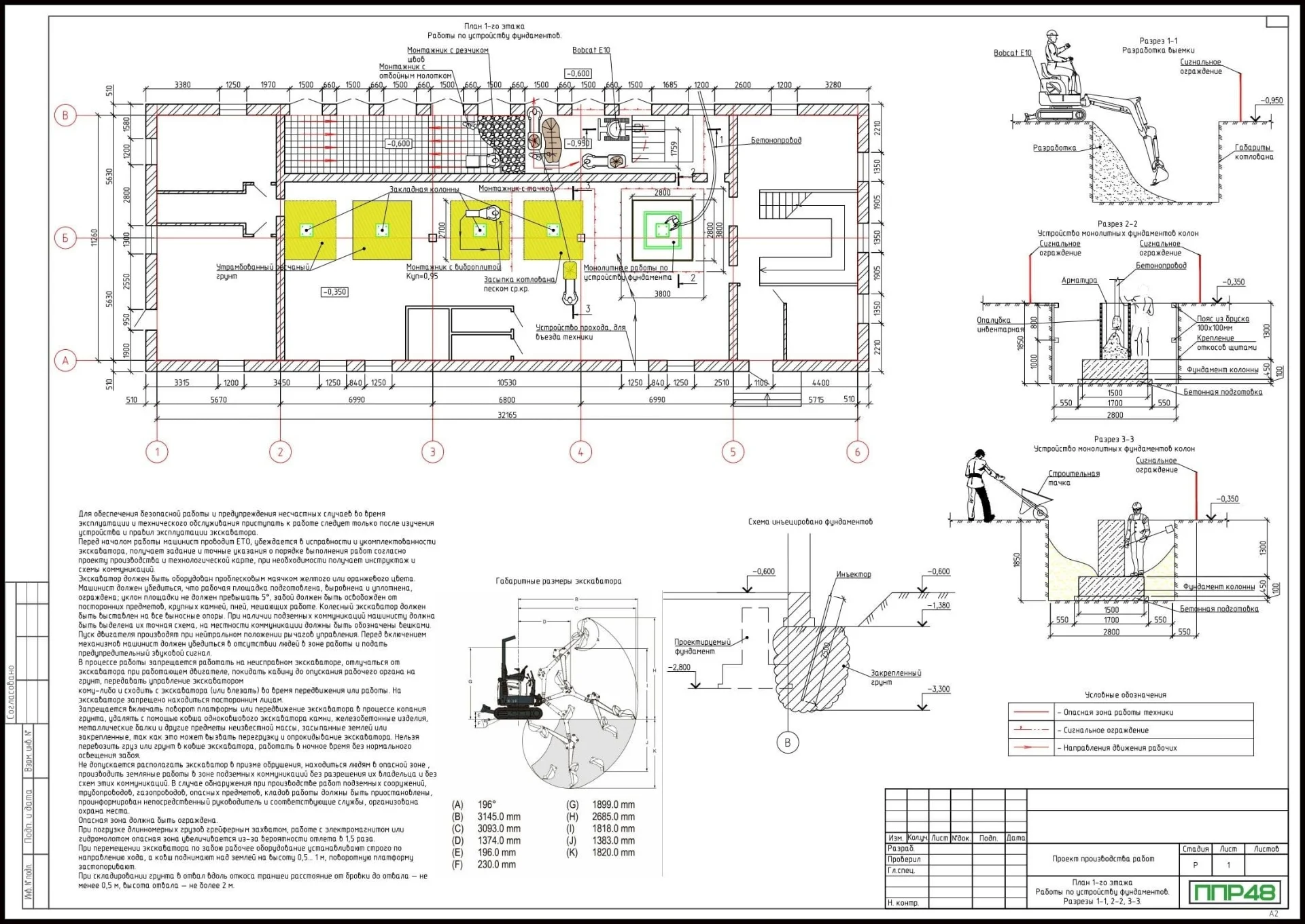
Технологическая карта на гидроизоляцию фундамента входит в состав ППР на устройство фундаментов.
Общие сведения о методах осуществления производственных операций по устройству изоляции содержатся в документах из нормативной базы.
Технологическая карта на устройство обмазочной и оклеечной гидроизоляции
Наибольшее распространение (в строительстве) получили такие виды гидроизоляции, как обмазочная (окрасочная), напыляемая, оклеечная, инъекционная, штукатурная. Все они обладают набором уникальных свойств, в результате чего наполнения разделов технологических карт существенно разнятся между собой. Обмазочная и напыляемая (загрузить) гидроизоляция применяются для защиты от напора воды до 0,02 МПа, оклеечная до 0,6 МПа, штукатурная до 0,5 МПа. Инъекционная гидроизоляция, как правило, применяется в случаях нарушений изоляции, характеризующихся наличием протечек в конструкциях фундаментов и подвальных стен. Данная ТК может входить в состав ППР на реконструкцию. Перед разработкой ТК на антикоррозионную защиту металлоконструкций, рекомендуется изучить типовые ТК на АКЗ МК.




































