Разработка ППРк - проекта производства работ кранами
Что такое ППРк в строительстве?
ППРк (проект производства работ подъемными сооружениями) представляет собой организационно-технологическую документацию, необходимую для строительного производства. Этот проект разрабатывается специально для работы определенного типа, модели или марки подъемного сооружения, а также для нескольких сооружений, которые функционируют на одном строительном объекте при определенных условиях.
Технологическая карта (ТК) для работы с кранами (подъемными сооружениями) разрабатывается в случаях, когда проект производства работ (ППР) включает различные строительные процессы, в которых работа с кранами или другими подъемными сооружениями является лишь частью общих работ. Обычно эти сооружения выполняют вспомогательные функции по отношению к остальным технологическим процессам. Также ТК может быть разработана для типовых работ в усредненных условиях, не подверженных влиянию других опасных и вредных производственных факторов.
Разработка ППР ППРк - ответственный и трудоемкий процесс, в котором принимают участие специально обученные и аттестованные в Ростехнадзоре в области Б9.31 (загрузить) профессионалы своего дела.
Разработка данного документа предназначена для описания погрузочно-разгрузочных мероприятий, работ по монтажу металлоконструкций или демонтажу строительных конструкций и тяжелого оборудования.
Специалистами нашей компании было разработано более 40 проектов. Мы зарекомендовали себя на рынке как ответственный, надежный подрядчик. У вас есть возможность Загрузить пример нашего документа.
Когда необходима разработка проекта
- - Грузоподъемные характеристики техники
- - Массы перемещаемых грузов
- - Высота и расстояние перемещения грузов
- - Стесненность условий строительства
- - Взаимосвязь с другими технологическими операциями, производимыми на объекте
Виды подъемных сооружений
- - Стреловой
- - Мостовой
- - Козловой
- Портальный
- Башенный
- Мачтовый
- Консольный
- - АГП
- - Телескопические
- - Ножничного типа
- - Коленчатого типа
- Мачтовые - - Подвесные
- Скиповые
- - Ручные канатные
- Ручные червячные
- Ручные цепные
- Шестеренные - - Электрические
- Пневматические - - Тельферы
Данный проект тесно связан с ППР на монтаж, в котором также могут затрагиваться вопросы, связанные с осуществлением технологических процессов с использованием грузоподъемной техники.
Что мы обязательно включаем в ППРк
Мы включаем в ППРк разнообразные документы и схемы, которые охватывают различные аспекты применения подъемных сооружений на строительном производстве. Важно понимать, что каждый из этих документов играет свою уникальную роль в обеспечении безопасности и эффективности работ с подъемными сооружениями.
Среди них:
Технологическая карта на работу с подъемными сооружениями является составной частью проекта ППРк или может представлять собой отдельный документ типизированной формы. Технологическая карта описывает последовательность выполняемых работ с подъемными сооружениями и устанавливает специфические требования и процедуры, необходимые для безопасного выполнения этих работ.
Инструкции для машиниста ПС, стропальщика и сигнальщика представляют собой должностные инструкции, которые определяют роли и обязанности работников, выполняющих конкретные функции при работе с подъемными сооружениями. Эти инструкции содержат руководства и рекомендации по безопасному использованию, настройке и обслуживанию подъемных сооружений.
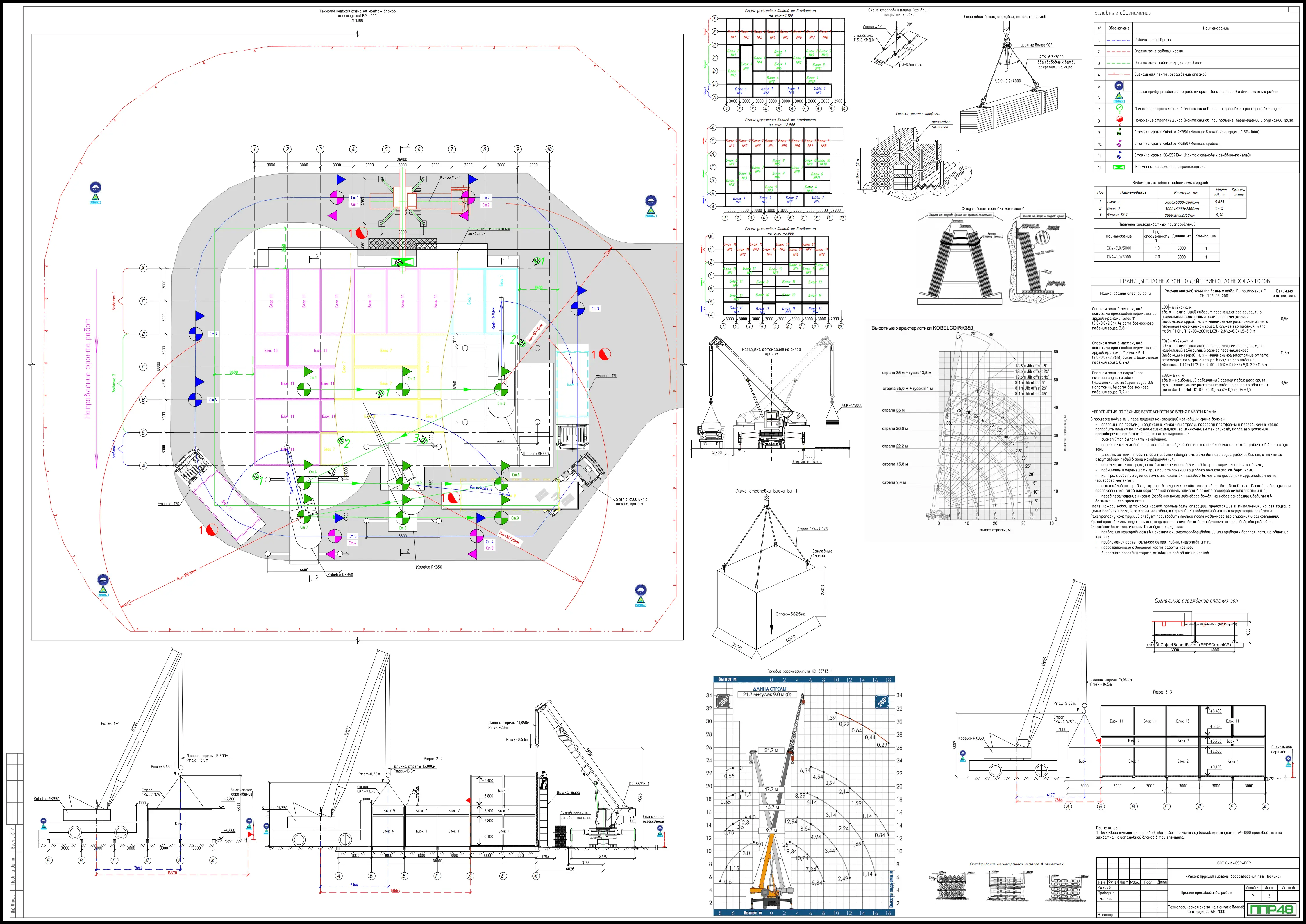
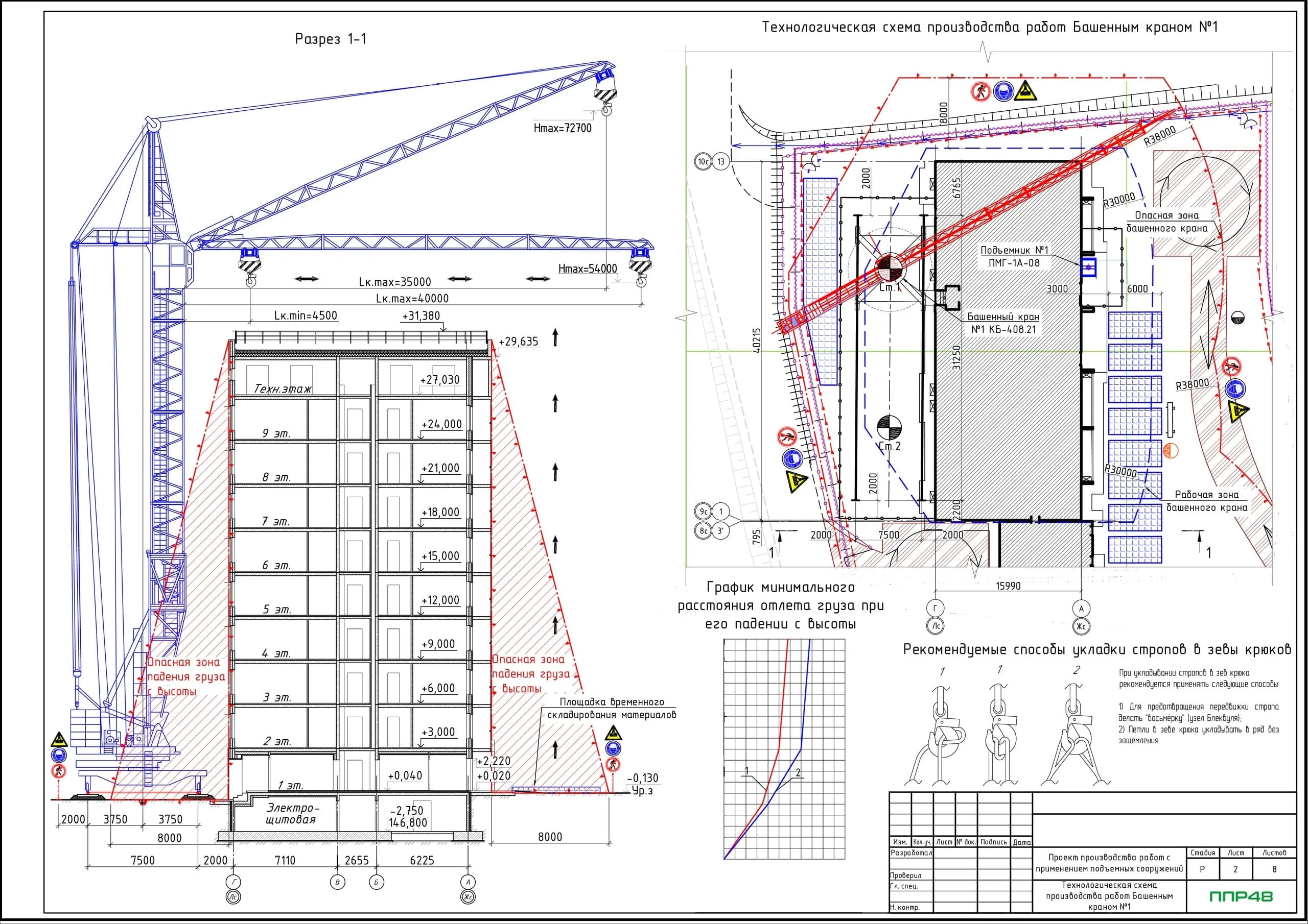
Схемы строповки являются графическими документами, которые разъясняют особенности правильного способа строповки различных грузов на строительном объекте. Они предоставляют информацию о выборе и расположении стропов, обеспечивая безопасное подъемное действие, особенно когда отсутствуют аналогичные схемы от производителя груза.
Схемы кантовки также являются графическими документами и предоставляют информацию о правильном способе кантовки крупногабаритных грузов, укрупненных элементов или собранных частей конструкции на строительном объекте. Они помогают обеспечить безопасное и эффективное подъемное действие в случаях, когда такие схемы отсутствуют в других документах.
Схемы совместной работы двух и более подъемных сооружений также являются графическими документами, которые разъясняют особенности безопасного подъема грузов с использованием нескольких подъемных сооружений. Они содержат инструкции по безопасности и рекомендации для работы в случаях, когда зоны действия подъемных сооружений пересекаются.
Все эти разделы ППРк способствуют безопасности и эффективности работ с подъемными сооружениями на строительном производстве. Они обеспечивают систематический подход и четкую организацию для обеспечения безопасности персонала и оборудования, а также соблюдения нормативных требований в процессе работы с подъемными сооружениями.
Состав ППРк
Утверждённого состава ППРк на данный момент не существует, каждый документ разрабатывается индивидуально под конкретные условия площадки строительства, применяемых ПС и выполняемых ими работ.
В любом случае документ должен сдержать пояснительную записку, а в подавляющем большинстве случаев в составе ППРк должен быть стройгенплан, в котором в частности будут казаны местанахождения опасных зон в пределах которых размещение санитарно-бытовых помещений строго запрещается. Необходимы схемы производства работ. Для подъёмных кранов разрабатываются схемы строповок, схемы кантовок, схемы погрузки и разгрузки грузов и материалов.
Содержание типового ППРк
- Содержание:
- Лист согласования;
- Лист ознакомления;
- Пояснительная записка:
- Область применения;
- Общие положения;
- Организация производства работ кранами;
- Технология производства работ кранами. Технологическая карта;
- Область применения;
- Монтаж конструкций;
- Методы складирования конструкций и материалов;
- Указания по строповке конструкций и материалов;
- Указания для машиниста крана;
- Указания ведения погрузочно-разгрузочных и монтажных работ;
- Таблица масс грузов;
- Монтаж средств подмащивания;
- Заключительные работы;
- Требования к качеству работ;
- Потребность в материально-технических ресурсах;
- Технико-экономические показатели;
- Техника безопасности и охрана труда:
- Общие указания:
- Требования безопасности при погрузо-разгрузочных работах;
- Техника безопасности при работе на высоте;
- Техника безопасности при работе со средств подмащивания;
- Электробезопасность;
- Пожарная безопасность;
- Мероприятия по охране окружающей среды;
- Графики:
- Календарный план производства работ;
- График движения рабочих кадров по объекту;
- График движения строительной техники;
- График поступления на объект строительных конструкций, изделий, материалов и оборудования;
- Ведомость ссылочных документов;
- Приложения
Правила разработки ППРк
Правила разработки ППРк, помимо законодательства России, диктует руководящий нормативный правовой документ – ФНП ПБ ОПО ПС, который предусматривает вопросы обязательные для рассмотрения и решения в рамках работы ПС на площадке. В первую очередь это вопросы безопасности во время монтажа, обслуживания, наладки, работы, ремонта и демонтажа ПС. Кроме этого, устанавливаются правила поверки и выбраковки тары, грузозахватных приспособлений, включая стропы.
Разработкой ППРк, ППР, Тк или иной ОТД рассматривающей применение ПС должно выполняться лицами, аттестованными Ростехнадзором на разработку подобных документов.
Особенности согласования ППРк
В соответствии с действующими правилами, проекты производства работ (ППР), связанные с подъемом и транспортировкой людей с использованием подъемных сооружений (ПС), должны быть разработаны с соблюдением требований промышленной безопасности, изложенных в Федеральных нормах правил (ФНП) "Правила безопасности при обслуживании подъемных сооружений" и согласованы с территориальными органами Ростехнадзора. В остальных случаях достаточно утверждения документа со стороны владельца ПС и эксплуатирующей организации. Обязательная экспертиза подобных проектов не требуется.
Необходимо отметить, что для ППР, связанных с работой грузоподъемных кранов, передвигающихся по рельсовому пути или в охранной зоне воздушных линий электропередачи, требуется согласование с владельцами ЛЭП.
Кроме того, ППРк должен быть согласован с владельцами эксплуатируемого недвижимого имущества, по которому будет производиться перемещение груза. Это особенно актуально в случае работы на действующих предприятиях или в местах расположения линейных объектов инфраструктуры.
Таким образом, при разработке ППРк необходимо учитывать требования промышленной безопасности, согласовывать проекты с соответствующими органами, владельцами ЛЭП и эксплуатируемым имуществом, чтобы обеспечить безопасность и эффективность работ, связанных с подъемными сооружениями.
ППР с применением ПС в 2026 году
Обеспечение безопасности работы с подъемными сооружениями в опасных производственных условиях является главной задачей организационно-технической документации (ОТД). ОТД включает в себя проекты производства работ подъемными сооружениями (ППРк) и аналогичные документы. Основная цель таких документов заключается в предотвращении возможных вредных последствий и обеспечении безопасности работы с подъемными сооружениями.
В рамках разработки ОТД уделяется особое внимание следующим элементам:
- Зоны обслуживания подъемных сооружений - места, где осуществляется перемещение рабочих органов и грузов, включая зоны кантовки и разворота грузов. Для работы с подъемниками указываются зоны обслуживания люльки или платформы, а также ярусы остановок.
- Опасные зоны работы подъемных сооружений - включают расстояния от возможного падения поднятых предметов (грузов), которые рассчитываются в соответствии с формулой, определенной в ФНП ПБ ОПО ПС. Опасные зоны работы также включают расстояния от движущихся частей и механизмов подъемных сооружений, а также от опасных приближений рабочих органов и груза к твердым поверхностям и другим подъемным сооружениям. Работа вблизи линий электропередач, высоких деревьев, мачт и действующих железных и автомобильных дорог также является опасной зоной работы ПС.
- Ограничения высоты подъема, опускания или поворота рабочих органов подъемных сооружений - в случае работы в ограниченных пространственных условиях, при недостаточной видимости или для снижения опасных производственных факторов.
- Подготовительные инженерно-технические мероприятия для установки или монтажа подъемных сооружений.
- Требования к установке кранов, включая расчетно-графические характеристики ветровых нагрузок, условия установки ПС вблизи откосов котлованов, габариты мест хранения и другие факторы.
- Другие мероприятия, обеспечивающие безопасность работы с подъемными сооружениями, при необходимости.
Мы придаем особое значение разработке такой специфической ОТД, которая обеспечивает безопасность работы с подъемными сооружениями в опасных производственных условиях, где работники сталкиваются с физическими преградами и другими опасными и вредными факторами. Наша документация стремится предотвратить возможные последствия и обеспечить безопасность работы с подъемными сооружениями.
Какие ППРк мы разрабатываем:
Каждый документ разрабатывается индивидуально под конкретные условия площадки строительства, применяемых грузоподъёмных сооружений и выполняемых ими процессов. Наша компания оказывает услуги по разрабатке ППРк для следующих видов подъемных сооружений и работ:
- ППРк на работу автомобильного крана
- ППРк на погрузочно-разгрузочные работы
- ППРк на монтаж металлоконструкций и инженерных сетей
- ППРк на монтаж сборных или монолитных ж/б конструкций
- На монтаж трубопроводов
- На монтаж стальных резервуаров
- На монтаж технологического оборудования
- На монтаж магистральных нефтегазопроводов
- На работу башенного крана
- На погрузочно-разгрузочные работы
- На монтаж металлоконструкций
- На монтаж сборных/монолитных ж/б конструкций
- ППР на работу портального крана
- ППР на работу козлового крана
- ППР на работу кран-балки
- ППР на работу строительного грузопассажирского подъёмника
- На работу трубоукладчика
- На работу автогидроподъемника, автовышки
Стоимость ППРк
В первую очередь на стоимость разработки ппрк влияет объём работ, выполняемых при помощи ПС и требующий разработки индивидуальных мер безопасности при эксплуатации. К таким мероприятиям стоит отнести количество и характер поднимаемых грузов, количество ПС участвующих в процессе строительства. Так же количество стоянок крана и необходимость расчёта основания для установки площадки или устройства фундамента ПС тоже можно отнести к расчётам нагрузок креплений и т.п.
Кроме работ немаловажным фактором ценообразования является условия в которых находится ПС. К таковым относятся стеснённые условия, условия ограниченной или отсутствующей видимости (перекидка груза за конструктивные элементы строений), условия эксплуатации в районе действующих инфраструктурных объектов, а так же линейных объектов энергетики включая электроснабжения.
В любом случае, учитывая специфичность подобных документов следует понимать, что оценку окончательной цены документа производит наш инженер, на основе анализа конкретной проектной или рабочей документации Вашего объекта строительства.
Для составления коммерческого предложения, оптимизированного под Ваш случай, рекомендуем Вам ответить на несколько вопросов, перейдя по ссылке.




































