Разработка ППР на прокладку трубопроводов
Общие сведения
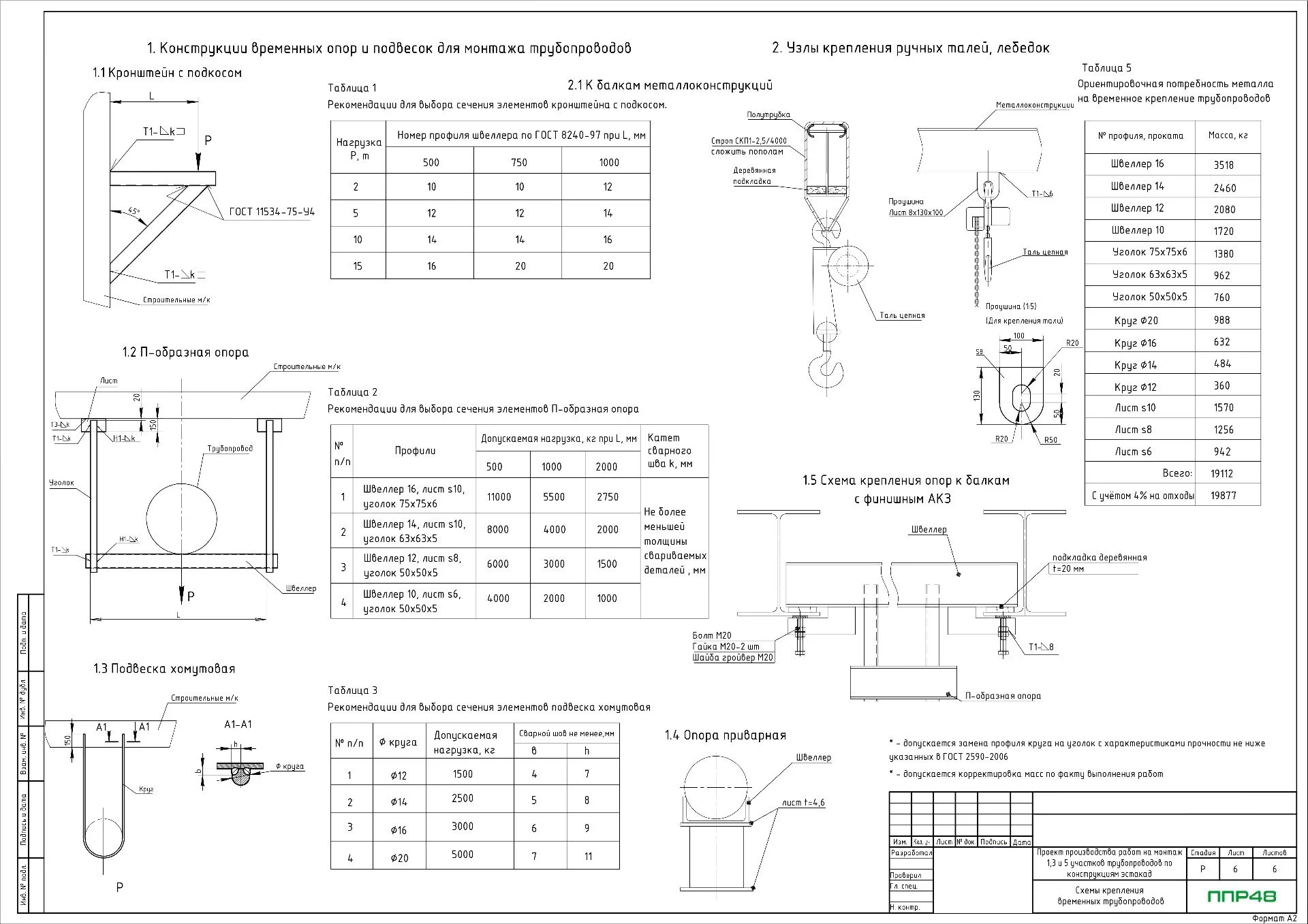
Системы, в состав которых входят технологические трубопроводы, широко задействованы в промышленной и гражданской отраслях. Обязательным документом при монтаже и укладке трубопроводов во время строительных работ, ремонта или реконструкции должен быть проект производства работ (ППР). Метод монтажа и укладки трубопровода (с использованием конкретных машин, механизмов и инструментов) подлежит в нем детальному описанию. Документ должен устанавливать решения и способы для соединения труб, их крепления, изоляции и пр. В каждом конкретном случае проект включает в себя привязку к определенному объекту. Так, в описании учитывают рабочее давление, категорию, протяженность и другие характеристики. При прокладке надземного трубопровода, в состав документа возможно включение технологических карт по монтажу несущих конструкций (эстакады, опоры, фундаменты и т.д). В некоторых случаях в проект включают ТК на сварку, теплоизоляцию и нанесение АКЗ покрытий труб.
ППР на монтаж и прокладку трубопроводов
При прокладке надземного трубопровода, в состав документа возможно включение технологических карт по монтажу несущих конструкций (эстакады, опоры, фундаменты и т.д). В некоторых случаях в проект включают ТК на сварку, теплоизоляцию и нанесение АКЗ покрытий труб. В процессе разработки проекта необходимо учитывать такие факторы, как:
условия доставки материалов на объект и техническое оснащение компании, занятой выполнением работ;- назначение трубопроводов и способ их прокладки (монтажа);
- инженерно-геологические и климатические условия;
- конструктивные особенности оснований, фундаментов, креплений для трубопроводов и технологического оборудования;
- типы соединений, технология устройства монтажных стыков;
- условия присоединения к оборудованию и измерительным приборам;
- способы проведения работ по контролю качества и испытанию систем
Проект производства работ на замену и ремонт технологических трубопроводов
Технологические трубопроводы – это системы, которые функционируют на промышленных предприятиях и перемещают в их пределах сырье, реагенты, полуфабрикаты, продукты производства и пр. Большинство внутренних технологических систем состоит из стальных трубопроводов, которые нуждаются в периодическом ремонте и замене. Ремонт может быть текущим или капитальным. При текущем – работники выявляют места, поврежденные коррозией, определяют участки износа отдельных элементов системы. На основе технического отчета о состоянии существующих инженерных коммуникаций, а также дефектной ведомости в ППР принимаются основные решения по восстановлению эксплуатационных качеств ремонтируемых сетей. Капитальный ремонт предполагает демонтаж отдельных участков системы и установку новых. Все эти решения отражают в проекте, что в свою очередь способствует экономии бюджета (себестоимости) на СМР.
ППР на сварку трубопроводов
Сварка является весьма распространенным методом устройства монтажных соединений в трубопроводных сетях. При наличии сварки, в проект включают технологическую карту на производство сварочных работ. В ППР данного типа следует указывать мероприятия по организации сварочных постов, а также их комплектность. Также в документ следует включить графики поставок сварочных материалов для полуавтоматической, автоматической, ручной дуговой сварки. Еще одной функцией проекта является возможность утвердить технологию по подготовке свариваемых элементов и наложению сварных швов по ГОСТ 16037-80. Также немаловажное значение имеют решения по охране труда, особенно при выполнении сварщиками работ на высоте.
Проект производства работ на изоляцию трубопроводов
Что касается теплоизоляции трубопроводов, то необходимость в ней появляется по причине существования ряда негативных факторов, среди которых можно выделить:
- Замерзание труб;
- Конденсация;
- Энергозатраты;
- Влияние экстремальных температур;
- Уровень шума
Грамотно составленный ППР всегда решает проблемы связанные с монтажом теполизоляции благодаря тому, что в его состав включают раздел на соответствующий вид работ.




































