ППР на монтаж конструкций из сборного железобетона
Проект производства работ на монтаж состоит из технологических карт.
Проект производства работ на монтаж конструкций из сборного железобетона
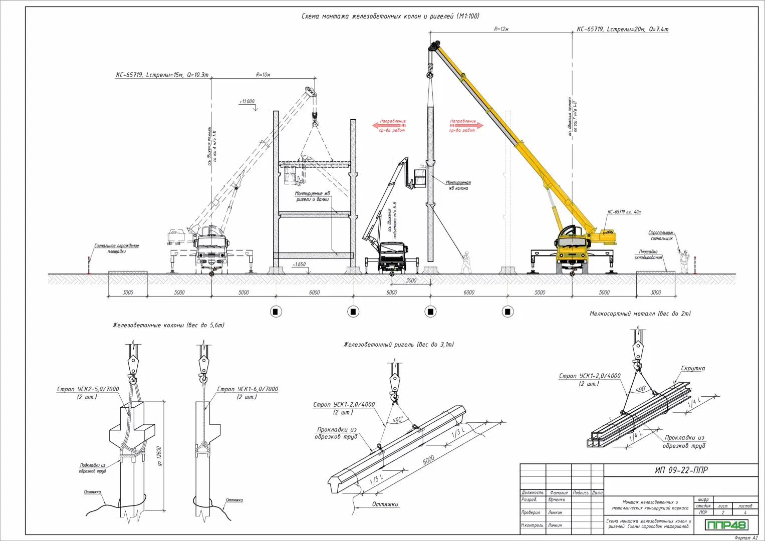
При монтаже сборных железобетонных конструкций (фундаментов, фундаментных блоков, колонн, балок, плит перекрытия, стеновых панелей, ферм и т.д) необходимо соблюдать требования СП 70.13330.2012 (просмотр). Последовательность сборки элементов каркаса из сборного ж.б. зависит от типа (назначения) здания. Существует два основных типа зданий, при сооружении которых осуществляется сборка железобетонных конструкций: жилые дома с каркасом из сборно-монолитного ж.б.; промышленные здания из сборного железобетона. Проект производства монтажных работ для сборных элементов можно условно разбить на несколько основных разделов: операции с участием грузоподъемной техники, выверка конструкций и их закрепление с помощью закладных деталей, работы по бетонированию (для элементов из сборно-монолитного ж.б.).








































