ППР на строительство дымовой трубы
От 3х дней. От 30 тысяч рублей. Бесплатное устранение замечаний. 100% гарантия согласования.
СКАЧАТЬ типовой образец ППР на ремонт дымовых труб
ОБЩИЕ СВЕДЕНИЯ
Планируя установку или демонтаж дымовых труб для котельных и промышленных предприятий, следует учесть сложность исполнения, состав отводимых газов и климатические особенности региона. Только опытные строители, обладающие знаниями и методикой выполнения данного вида работ, могут грамотно оказать столь специфические услуги. Основополагающую роль в этих процессах играет ППР для дымовых труб. В процессе разработки ППР важно учитывать конструктивные особенности дымовых труб. Способы демонтажа /монтажа для кирпичных, железобетонных и металлических ж.б. труб имеют существенные различия.
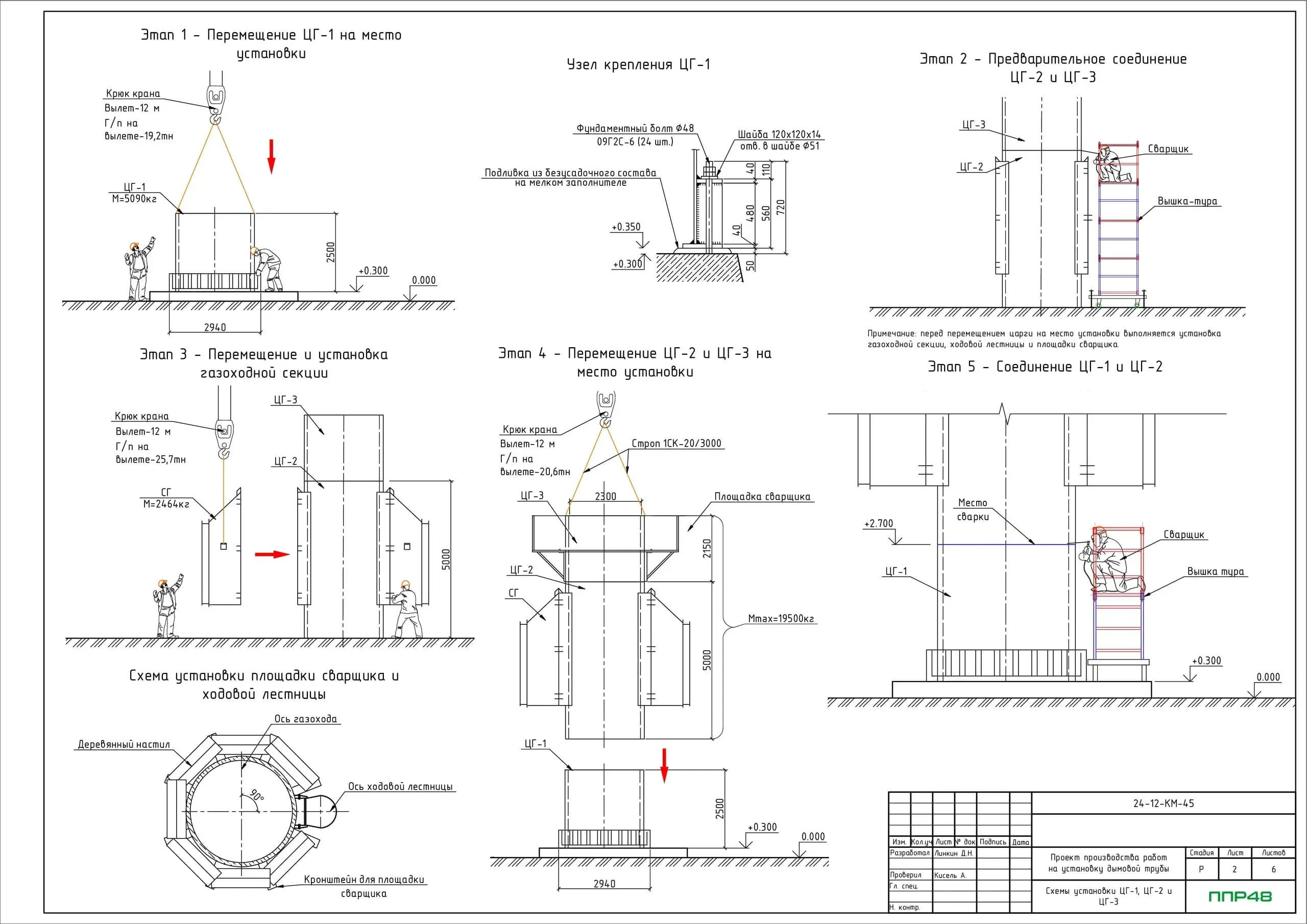
ППР на монтаж и ремонт дымовых труб
Дымовые трубы классифицируют по типам материалов из которых они сооружаются. Наибольшее распространение получили такие виды труб, как кирпичные, монолитные железобетонные, из сборного железобетона и металлические. Для каждого из вышеперечисленных видов труб существует своя уникальная технология возведения, основанная на многолетнем строительном опыте. В процессе разработки проекта на строительство новых или ремонт существующих труб, необходимо учитывать требования используемых в данной отрасли нормативов (загрузить). Кроме технологических карт, устанавливающих правила производства основных видов работ, в ППР на ремонт трубы включают ТК на высоте. Одним из возможных методов разработки ППР на ремонт трубы, является метод адаптации типовых решений (посмотреть) под сложившиеся на строительном объекте условия.
Особенности разработки ППР на монтаж металлических дымовых труб

Составление ППР на монтаж металлических дымовых труб является сложным высокотехнологичным процессом, который могут выполнить только хорошо обученные и подготовленные инженеры. Сотрудники компании ППР48 всегда учитывают все особенности составления проектов производства работ и включают в их состав разделы согласно СП 48.13330.2019 — свод правил по организации строительства.
Кроме стандартных разделов документа, в состав ППР на монтаж металлической дымовой трубы необходимо внести:
- перечень средств индивидуальной защиты, в т.ч. СИЗ от падения с высоты;
- необходимость технического оснащения площадки (механизмы, инвентарь, оборудование);
- порядок и правила сборки и закрепления средств подмащивания и внутренних передвижных платформ;
- технологию выполнения работ с использованием системы строительных лесов, вертикально-перемещающихся платформ, альпинистского снаряжения и т.д.;
- мероприятия по охране труда, в ч т.ч. при выполнении работ на высоте
Также в проект включается раздел посвященный заключительному этапу строительства, где описываются решения по демонтажу ограждений, вспомогательного оборудования, уборке рабочих мест.
ППР на демонтаж дымовых труб
В изготовлении документации заняты исключительно квалифицированные сотрудники организации ППР48, получающие информацию при содействии нашего заказчика.
Чем наши проекты отличаются от проектов большинства специалистов на рынке разработки ППР:
- Нами учитываются все нюансы конкретного строительного объекта, конструктивные особенности демонтируемых дымоходов;
- Мы подготавливаем документ интуитивно-понятным для всех участников строительного процесс, снабжая его иллюстрациями и графическими схемами (планы, разрезы, узлы);
- Наши пояснительные записки содержат не менее 70% уникального текста, написанного от руки инженером, который внимательным образом изучил исходные данные нашего Заказчика;
- Наши проекты имеют приятный внешний стиль, удобно читаемые шрифты, ссылочное содержание, перекрестные ссылки внутри PDF документа;
- Все наши документы проходят несколько ступеней внутренних проверок, благодаря чему в них встречаются ссылки только на актуальные нормативные документы.
Хотите также? Тогда оставьте заявку на разработку вашего ППР специалистами нашей компании.




































