Разработка ППР на комплекс фасадных работ - устройство и ремонт
Виды ППР на фасад
ППР на монтаж и устройство фасада разрабатывают с учетом требований нормативных документов, определяющих правила выполнения работ по его составлению и проектированию.
Существует несколько основных видов ППР на фасад:
- ППР на вентилируемый фасад
- ППР на устройство и ремонт мокрого фасада
- ППР на покраску фасада здания
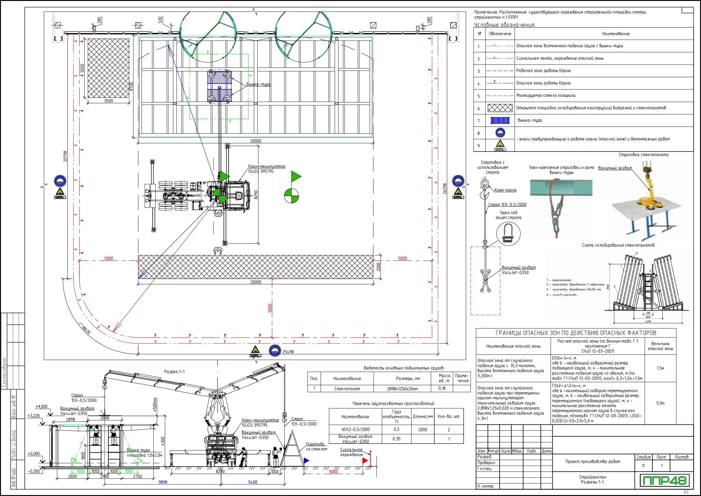
- ППР на демонтаж подвесных вентилируемых фасадов
- ППР на монтаж алюминиевых витражей
- ППР на ремонт фасада с лесов
- проект монтажа навесных систем (НВФ);
- устройство сухих отделочных покрытий;
- устройство мокрого фасада;
- установка навесных светопрозрачных конструкций (замена стекла);
- комбинированный ППР на фасадные работы, в состав которого включают все либо несколько из вышеперечисленных видов технологических операций, в том числе работы по утеплению фасада.
В некоторых случаях возникает необходимость в сооружении строительных лесов. Леса монтируют по технологической карте на установку средств подмащивания.
ППР на фасадные работы
Ремонт экстерьера (фасада) здания может быть капитальным (на всю площадь) или локальным (отдельные зоны с дефектами). Для осуществления капитального ремонта фасада, рекомендуется использовать строительные леса. Косметический ремонт фасада целесообразно выполнять, прибегнув к помощи специализированной строительной техники. Как правило, технику подбирают с учетом высоты подъема рабочих и подачи материалов в зону производства работ. Для мероприятий, проводимых на высоте до 50 м, используют автовышки (АГП) или подъемники ножничного типа. Начиная с высоты 50 м и более используют мачтовые подъемники, системы канатного доступа, подъемники, устанавливаемые на крышах зданий или сооружений. В ППР на фасадные работы с использованием систем канатного доступа, включают раздел по охране труда на высоте.
Сколько стоит разработка ППР на устройство фасадов?
Ремонт
Новый
Особенности разработки проекта работ ППР
Наша компания занимается подготовкой проектов производства работ с 2016 года. Сложно представить более опытную сплоченную и скоординированную команду для оказания услуг удаленного отдела ПТО чем мы. Опираясь на наш опыт, мы выявили основные правила оказания услуг по подготовке документации для фасадных работ. ППР на фасадные работы включает в себя несколько технологических карт.
Проект должен содержать следующие решения:
- правила подготовки территории строительной площадки и ее оснащение;
- четкие указания по технологии выполнения СМР и сопутствующих технологических операций;
- все фасадные работы должны иметь технологическую увязку с работами по демонтажу или устройству кровли, монтажу сэндвич панелей и т.д. (при наличии);
- должен содержать раздел для обеспечения безопасности проведения работ на высоте;
- утилитарные методы контроля качества (измерительные, визуальный осмотр и т.д.)
Вы можете ЗАГРУЗИТЬ экземпляр на свой компьютер.




































