Разработка проекта организации сноса
Заказчики компании ППР48 обращаются к нам за разработкой проекта организации работ демонтажа, в случаях, когда необходимо освободить территорию от зданий или сооружений под новое строительство.
Перед разработкой ПОД рекомендуется ознакомиться с МДС 12-64.2013 и СП «Правила производства при демонтаже и утилизации»
Состав проекта организации строительства по сносу и демонтажу должен соответствовать постановлению правительства РФ от 16.02.2008 N 87 "О составе разделов проектной документации и требованиях к их содержанию".
Смотреть перечень данных
Проект организации сноса для капитальных сооружений
Однажды к нам обратился заказчик, который рассказал, что перед началом сноса капитальных сооружений, ему требуется провести мероприятия по выводу строения из эксплуатации. В нашем проекте мы учли, что на начальном этапе выполняется отключение внутренних инженерных сетей от источников питания. Концы кабельных линий должны быть закупорены, газопроводы - продуты и заглушены, водонесущие трубы заглушены. В процессе выполнения данных мероприятий, необходимо составлять акты, свидетельствующие об отключениях инженерных коммуникаций сооружения от городских сетей. Перед началом ликвидации объекта, необходимо произвести визуальный осмотр всех демонтируемых конструкций. При обнаружении рисков, связанных с незапланированным обрушением частей строения, в документ вносят специальные решения, позволяющие обеспечить безопасность в зоне производства технологических операций. Это по верхам, а подробно Заказчик все увидел в своем проекте, который к слову, был прекрасно согласован проверяющими службами.
Проект на снос домов и прочих сооружений
В нашей работе мы всегда учитываем материально-технические возможности наших клиентов. Существует несколько типов строительных компаний, которые применяют различный подход к сносу (демонтажу):
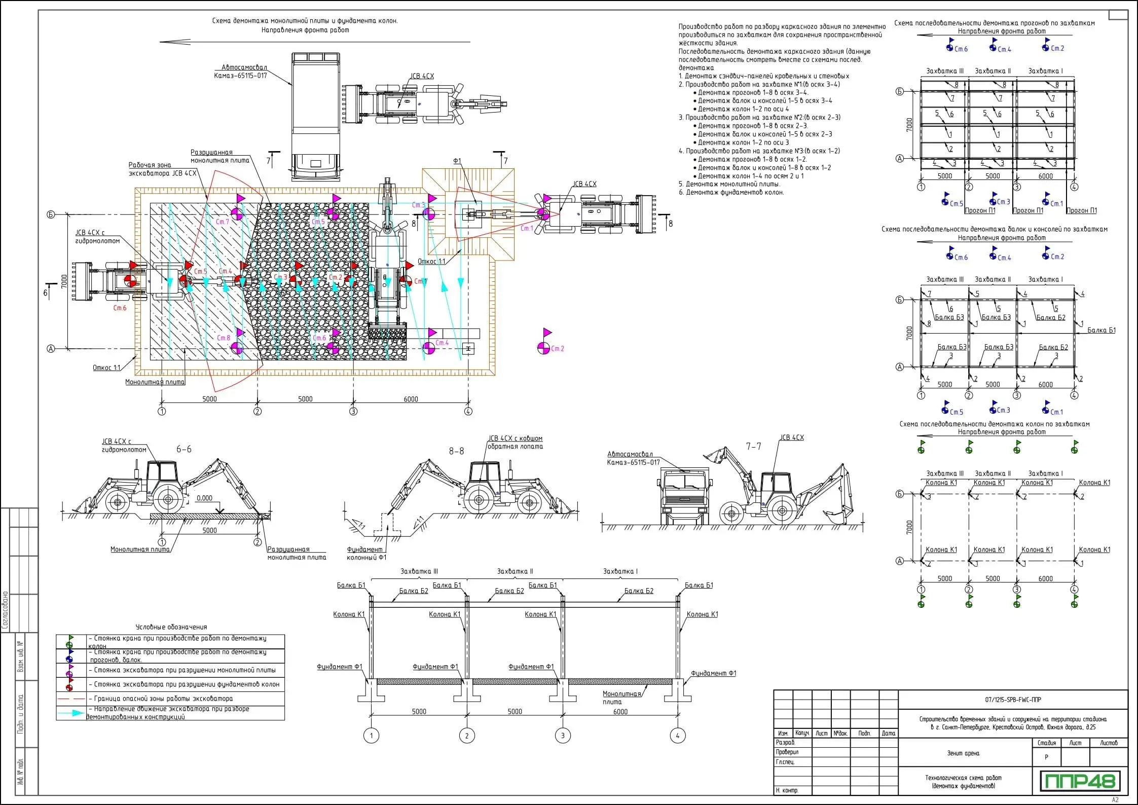
1. Механизированный способ - предполагает использование строительной техники, оснащенной навесным оборудованием, которое используется для механического разрушения конструкций.
2. Метод поэлементной разборки. Демонтируемые конструкции стропят и перемещают в зону складирования с помощью грузоподъемной техники. Данный метод позволяет свести к минимуму риски, связанные повреждением близлежащих строений и коммуникаций. Способствует обеспечению сохранности разбираемых конструкций.
3. Ручной метод. Метод используется в случаях, когда перемещение строительной техники мешают габаритные ограничения, когда ее использование с экономической точки зрения становится невыгодным, либо если производственные операции выполняются в охранной зоне инженерных сетей.
Сколько стоит разработка проекта по сносу (ПОД)?
Цена без прохождения экспертизы
Цена с прохождением экспертизы
Виды проектов и их различия
Инженеры нашей компании в своей практике сталкивались с большим количеством случаев, когда требовалось подготовить проект, связанный с демонтажем. За время нашей работы мы создали более 150 проектов данного типа. Государственные муниципальные учреждения являются для нас прямыми заказчиками ПОД. Крупные проектные институты делегируют нам разработку этого раздела ПД, в случаях когда сами не успевают выполнить его вовремя. Строительные фирмы заказывают в нашей компании разработку ППР и ТК на работы по демонтажу объектов капитального строительства, инженерных сетей, инфраструктурных объектов, и т.д.
Чаще всего у нас заказывают:
- Проект организации демонтажа;
- Проект организации сноса (ПОД) для капитальных сооружений;
- Проект на снос домов и прочих сооружений;
- Проект организации работ по демонтажу (ПОД);
- Проект производства работ на демонтаж;
- Технологичная карта на демонтаж строительной конструкции;
- Технологическая схема демонтажа.
Проект организации демонтажа
Проект организации сноса или демонтажа (сокращённо ПОД) – это обязательный организационно-технологическая документ (раздел проектной документации) на строительное производство, разрабатываемый для выполнения ликвидации (сноса) зданий строений, сооружений, иных строительных объектов или линейных объектов инфраструктуры. Также в проекте рассматриваются вопросы организации демонтажа и дальнейшей утилизации конструкций. В некоторых случаях ПОД предшествует проекту организации строительства (далее – ПОС). Довольно часто разработку данного проекта выполняют не столько с целью организации демонтажных работ, сколько для того, чтобы получить все необходимые разрешения и закрыть юридическую сторону подготовки к новому строительству.
Требования к проекту
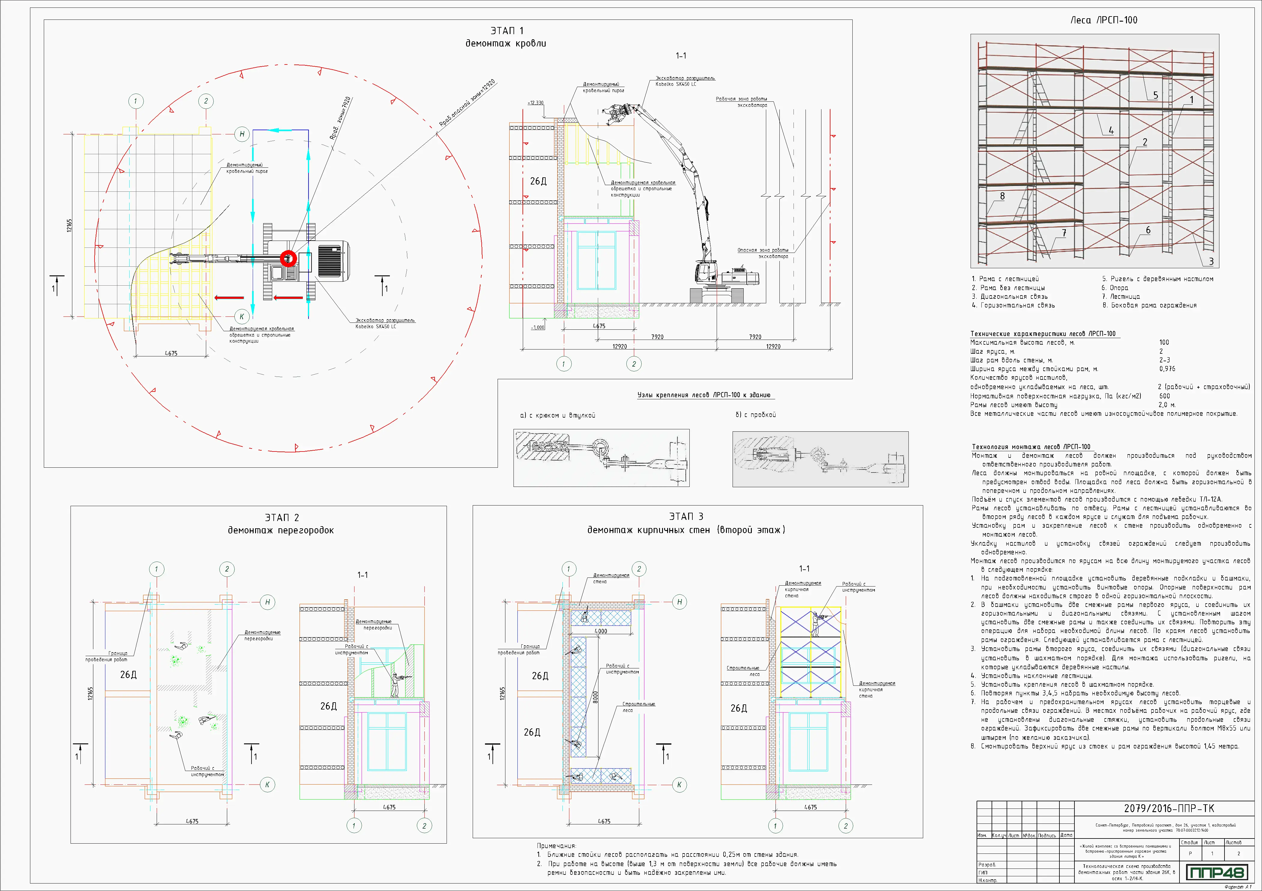
Основные требования по осуществлению сноса и самовольных построек содержаться в главе 6.4 Градостроительного Кодекса Российской Федерации. Проведение работ по демонтажу – это процесс, насыщенный опасными и вредными производственными факторами, ПОД напрямую связан с безопасностью и максимальной минимизацией их воздействия. В настоящее время в России эти работы нормирует СП 325.1325800.2017 и постановление 509 в части сноса строений гражданского и производственного назначения, а также строения исключенных из реестра опасных производственных объектов (ОПО) т.е. подавляющего большинства объектов. Демонтаж (снос) уникальных, особо опасных, технически сложных и линейных зданий и сооружений производиться по общим правилам, на основании специализированной документации.
Нормы, исходные данные и содержание
Как говорилось ранее, основанием для разработки ПОД служит проектная и эксплуатационная документация на сносимое строение. К такой документации относятся: технический паспорт, технические изыскания на предмет текущего состояния и износа, исполнительная документация (при наличии), информация о готовности сносу и выводу его из эксплуатации, в том числе по отключению его от сетей инженерно-технического обеспечения, кадастровый план и(или) топографическая съёмка земельного участка, а также иная документация. Если строение является самовольной постройкой, то основанием для его сноса будет являться решение суда или постановление органа местного самоуправления.
Особенности разработки документа
При разработке ПОД, помимо установленных обязательных вопросов, необходимо учитывать влияние сносимого строения на окружающие строения, выбрать оптимальный метод демонтажа, учесть сезонность проведения работ, предусмотреть мероприятия по снижению неминуемых последствий демонтажа. Важным моментом при разработке является проверка и минимизация возможного ущерба при сносе, для чего предусматривают, например, поэлементный демонтаж. При демонтаже линейных объектов, например, тепловых сетей (теплотрасс) важно иметь данные о пересечении теплотрассы с иными линейными объектами особенно при залегании по землёй.
Чем отличается ПОД от ППР на демонтаж
Основными отличиями можно назвать, что ПОД может разрабатываться как самостоятельный документ на демонтаж целого объекта строительства, основанием для его разработки служит эксплуатационная документация на сносимый объект.
ППР на демонтаж отличается от ПОД, тем, что он разрабатывается на какие-либо части или целые конструкции или системы здания строения или сооружения, в результате строительства, реконструкции, капитальном ремонте, техническом перевооружении и т.п.
Кроме этого имеются различия в нормативно-правовой базе на основании которой ведется разработка документов, что в свою очередь влияет на состав, наполнение, порядок утверждения и согласования документов. ПОД это проектная документация (стадия П), а ППР на демонтаж организационно-технологическая.




































