Оцифровка и векторизация схем и чертежей в Автокаде
Почему оцифровка необходима
Векторизация – улучшение качества чертежа на компьютере при помощи специального программного обеспечения. Классический материал для чертежей – бумага, хоть и является распространенным носителем, но не подходит для продолжительного использования и хранения. Она изнашивается, деформируется, а нанесенная графика становится слабо читаемой. Решением этой проблемы является оцифровка схем. Оцифровка – это процесс создания векторного изображения на основе графического изображения на бумажном носителе. Эту операцию часто недооценивают, считая ее простой. Действительно – лежит чертеж, выполняются замеры и переносятся в компьютер. Однако это далеко не так. Что, если схема выполнена на листах А3 или А1 или утрачен масштаб чертежа? Оцифровка в Autocad или в Компасе дает электронную версию графики. В дальнейшем, пользователь сможет беспрепятственно масштабировать изображения, вносить правки и дополнять чертеж. С обычным растровым фото такое не проделать – при увеличении графики неизбежно будут пиксели, что ведет к потере точности схемы. Векторное изображение лишено такого недостатка. Вопрос хранения электронных схем решается сам собой: цифровые копии можно удобно хранить на различных носителях.

Наиболее распространенные случаи переводов чертежей
Перевод рисунка в чертеж необходим практически везде, поскольку позволяет сохранить тем самым исходную информацию. Цифровые файлы исключают такие повреждения, которым поддается бумага, они не требуют специальных условий хранения, а место занимают только на физическом жестком диске.
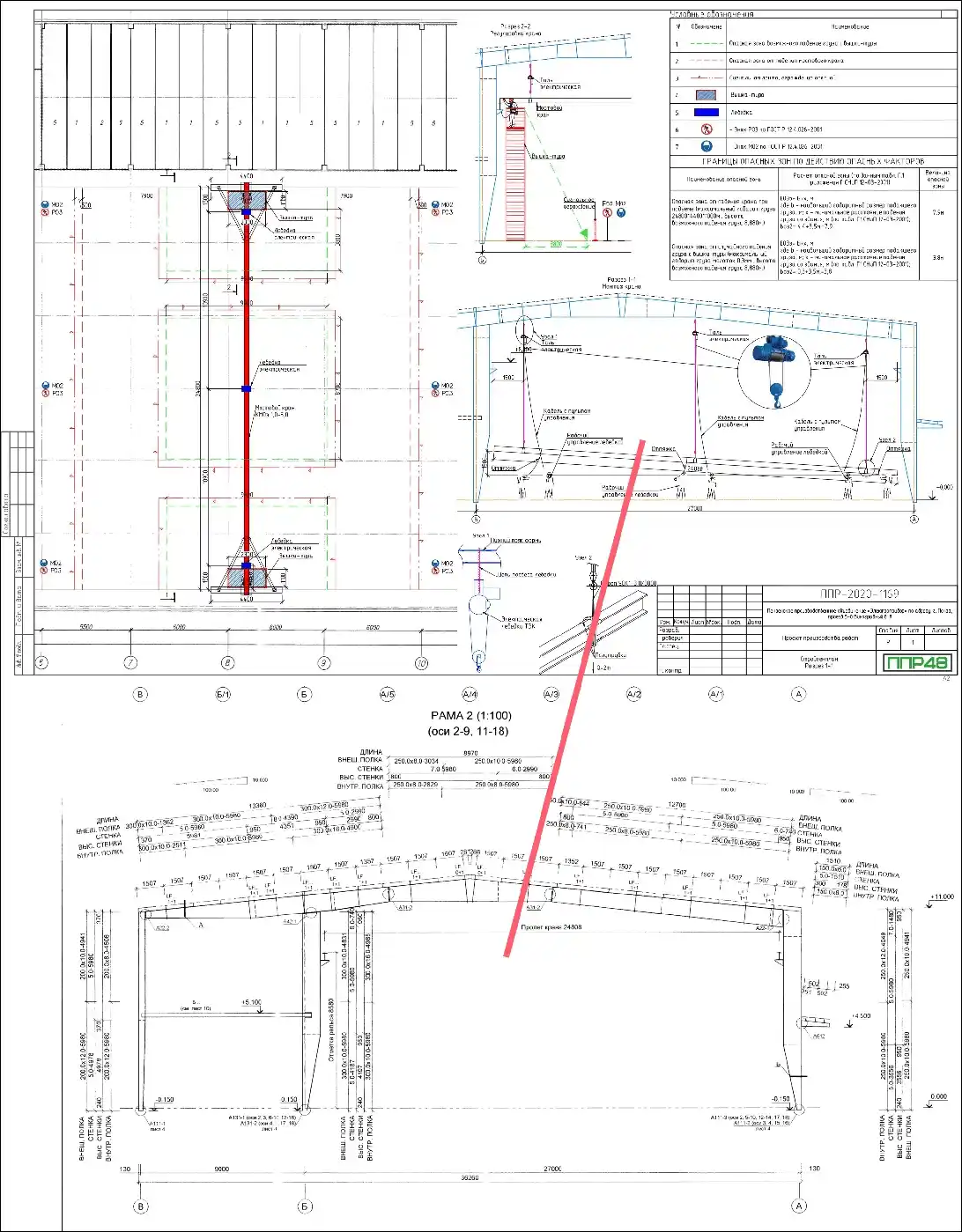
Оцифровка необходима для:
- архитектуры;

- строительства;
- машиностроения;
- авиации и космической отрасли;
- электроники;
- металлургии и других отраслей.
Практически каждая инженерная специальность сталкивается с необходимостью черчения. Более того, у каждого предприятия имеется архив на бумажных носителях, который со временем приходит в негодность или попросту утратится. Массовая цифровизация в таком случае становится обязательным шагом из-за угрозы повреждения и потери ценной информации. Векторизация позволяет уберечь дорогостоящие разработки и упростит условия их использования.
В других случаях оцифровка представляет собой один из вариантов оптимизации работы архива. Она позволяет:
- снизить количество ресурсов, необходимых для ухода за цифровыми копиями;
- упрощение доступа к информации, особенно в плане массового копирования;
- возможность оперативного внесения изменений в существующие чертежи без необходимости физического процесса черчения;
- архив превращается в цифровое хранилище, в котором каждый сотрудник обеспечен быстрым доступом к графике.
Практика доказывает, что перевод схем в Автокад или другие комплексы более оправдан, чем другие варианты оцифровки. Экономическая составляющая также на стороне такого вида цифровизации, особенно для больших архивов.
Варианты оцифровки
Процесс выполняется двумя способами:
- автоматически – специальный программный комплекс самостоятельно выполняет просчет графики, применяется в случаях, когда электронная копия нуждается в незначительных изменениях;
- ручной – специалист самостоятельно переводит каждую линию и символ.
Автоматизированная оцифровка – распознавание схемы через программы. Программа не способна распознать толщину линии, символа. В результате изображение получается с искаженной геометрией. Автоматизированная векторизация подразумевает дальнейшую работу специалистов по присвоению каждой фигуре своего типа, редактированию символов и других операций. Также этот тип оцифровки выдает файлы с гораздо большим размером. Автоматизированную векторизацию стоит рассматривать, как быстрый способ получить цифровой отпечаток, для которого не выдвигаются особые требования качества. Ручной перевод изображения в чертеж (ручная векторизация) кардинально отличается. Здесь необходима помощь специалистов. Оцифровка в Компас или Автокад работает путем поэлементного переноса графики в электронный вид. По сути, это перерисовка графики и текста, только в компьютерном ПО.

У нее есть ряд преимуществ в сравнении с автоматизированный режимом:
- более строгий контроль качества - весь чертеж выполняется вручную;
- цифровая копия качественнее за счет отсутствия искажений фигур;
- проще придерживаться стандартов ГОСТ.
На сегодня существует целый ряд программных решений для выполнения автоматизированной оцифровки графики. Однако они имеют свои ошибки, полученные схемы требуют ручной доработки в среде Автокад или Компас. По этой причине, перевод схем специалистами вручную считается наиболее эффективным и качественным. Кроме известных AutoCAD, Компас существует ряд других комплексов ПО для черчения. Программы могут использовать как для 2D, так и для трехмерного рисования, что существенно расширяет возможности построения схем.
Преимущества онлайн оказания услуг по векторизации чертежей
Что такое оцифровка проекта в Автокаде или Компасе? Это, в первую очередь, работа с компьютерными системами. Не всегда существует возможность организовать процесс перевода графики в электронный вид прямо на месте. Для этого необходимо подготовить электронное оборудование, закупить комплекс специальных программ. Но самое главное – необходим штат обученных специалистов, свободно владеющих ПО и правилами построения схем. Очевидно, что соблюсти все условия в рамках одного предприятия достаточно проблематично. К тому же заказчика часто интересуют единичные чертежи. В таких случаях нанимать команду специалистов-чертежников финансово неоправданно. Векторизация проекта онлайн – современное и удобное решение. Клиент имеет возможность получить качественную электронную копию материала, не прибегая к лишним затратам.
Преимущества онлайн выполнения работ:
- заказчик доверяет свой документ профессиональной команде чертежников с большим опытом;
- финансовая выгода – онлайн сотрудничество в разы выгоднее самостоятельных работ;
- гарантированный результат – компания берет ответственность за выполнение работ.
Кроме того, специалисты проанализируют и исправят ошибки в схеме, доработают чертеж по требованию заказчика. В кратчайшее время клиент получит готовый документ, выполненный с учетом всех требований.
Стоимость оказания услуг по оцифровки схем, цены
Цена оцифровки чертежей зависит от ряда факторов:
- сложность проекта;
- размер исходного чертежа;
- перевод из ПДФ в Автокад – получение полноценной рабочей схемы;
- внесение правок, доработка по замечаниям заказчика и другие.
Детальную информацию всегда можно узнать у наших специалистов по контактным телефонам.




































