Технологическая карта на устройство фасада
Технологическая карта на облицовку - документ, содержащий наиболее рациональные решения по отделке наружных поверхностей зданий материалами с высокими защитными и декоративными свойствами.
Перед разработкой ТК на облицовку рекомендуется ознакомиться с типовыми картами, в которых содержатся общие указания по производству облицовочных видов работ.
Технологическая карта на устройство фасада разрабатывается с учетом требований правил охраны труда на высоте.
Технологическая карта на вентилируемый фасад
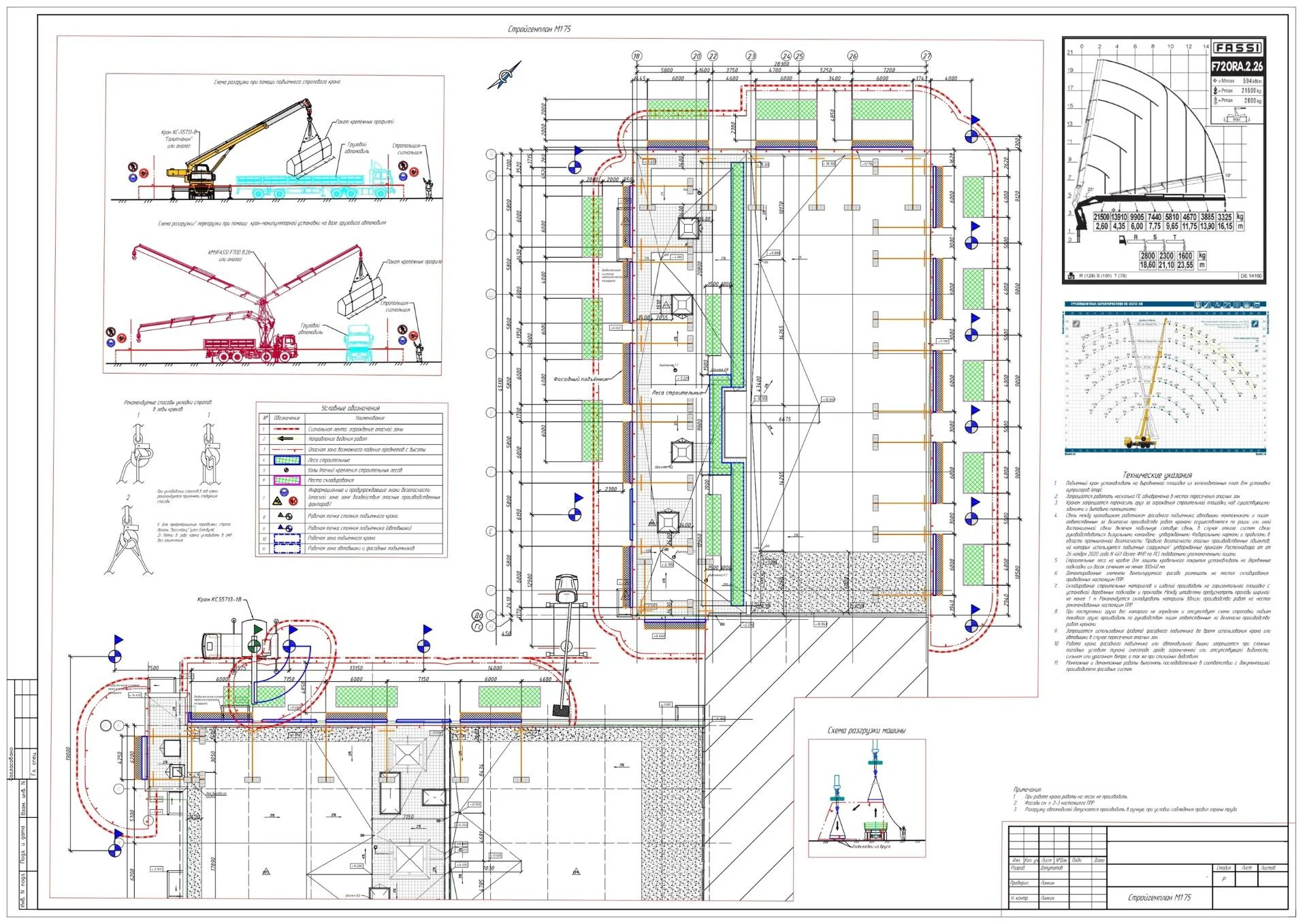
Технологическая карта на устройство вентилируемого фасада состоит из нескольких основных разделов. Один из них - «Технология производства работ». Данный раздел служит для раскрытия операций, последовательно выполняемых в процессе возведения навесной фасадной системы (НФС). Последовательность установки НФС, в общем виде, выглядит следующим образом: подготовительные мероприятия, разметка и бурение отверстий под крепежные элементы, установка кронштейнов, монтаж теплоизоляции, устройство ветро-гидрозащитной мембраны, монтаж металлического каркаса системы, фиксация облицовочного материала, закрепление элементов примыкания к конструкциям здания. Рекомендации по возведению НФС содержатся в СТО НОСТРОЙ 2.14.67-2012. Перед изготовлением ТК данного типа рекомендуется изучить типовые проекты.
Технологическая карта на монтаж витражей
Технологическая карта на монтаж витражей позволяет организовать работы наиболее эффективным и безопасным образом. Этапы монтажа крупногабаритных светопрозрачных конструкций зависят от их конструктивных особенностей.
В большинстве случаев принимают следующую технологическую последовательность:
- подготовительные работы;
- разметка фасада, крепление закладных деталей;
- сборка, выверка и закрепление элементов каркаса к несущим
- конструкциям здания;
- установка, выверка и фиксация светопрозрачных конструкций заполнений.
Для создания витражей могут потребоваться такие виды техники и приспособлений, как кран манипулятор, автогидроподъемник, вакуумная присоска. Перед составлением ТК, рекомендуется изучить документы, в которых содержатся решения по сооружению алюминиевых светопрозрачных конструкций.




































