ППР на работы по демонтажу и сносу зданий - услуга нашей компании
От 2х дней. От 30 тысяч рублей. Бесплатное устранение замечаний. 100% гарантия согласования.
ППР на демонтаж и снос здания - особенности разработки
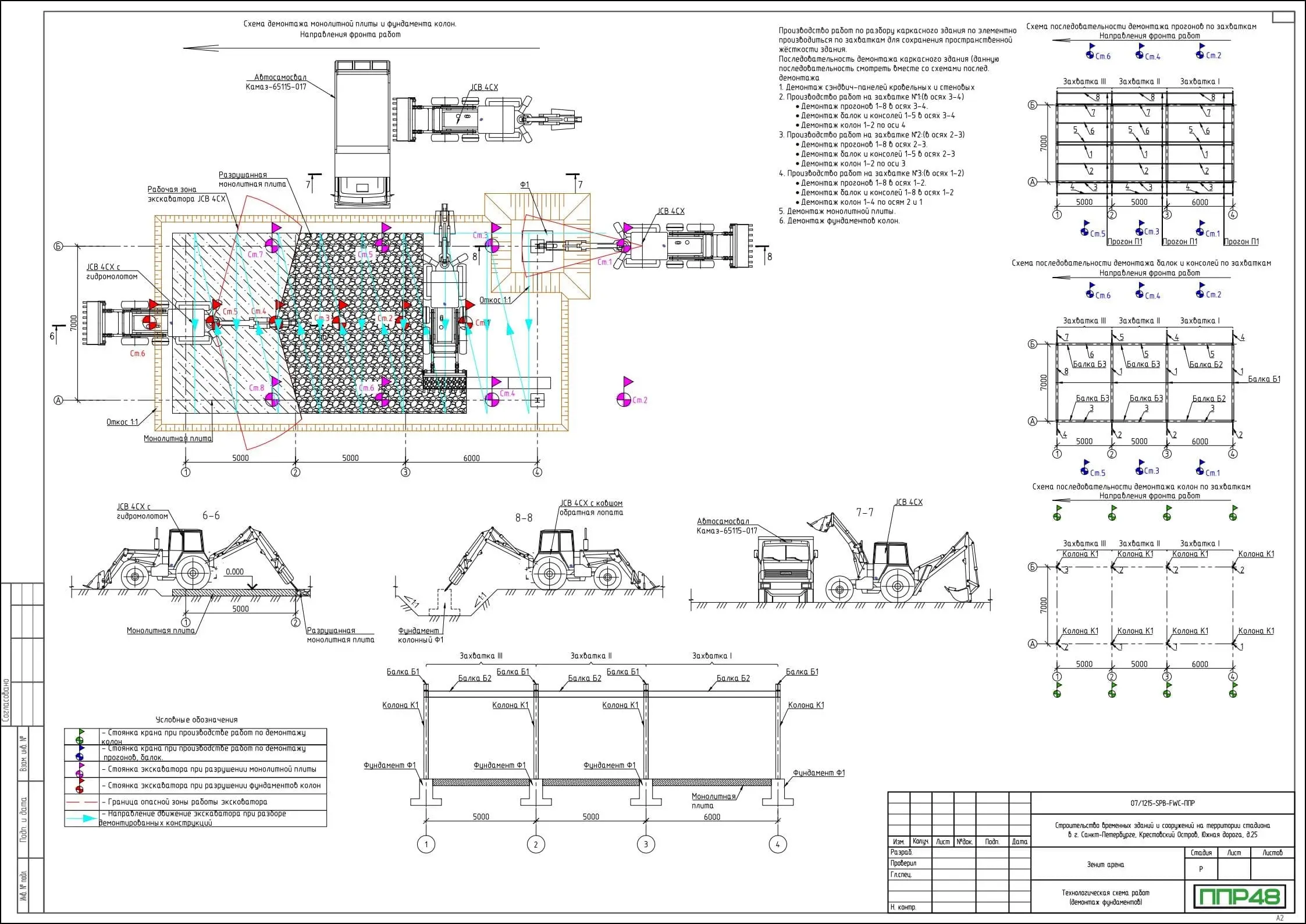
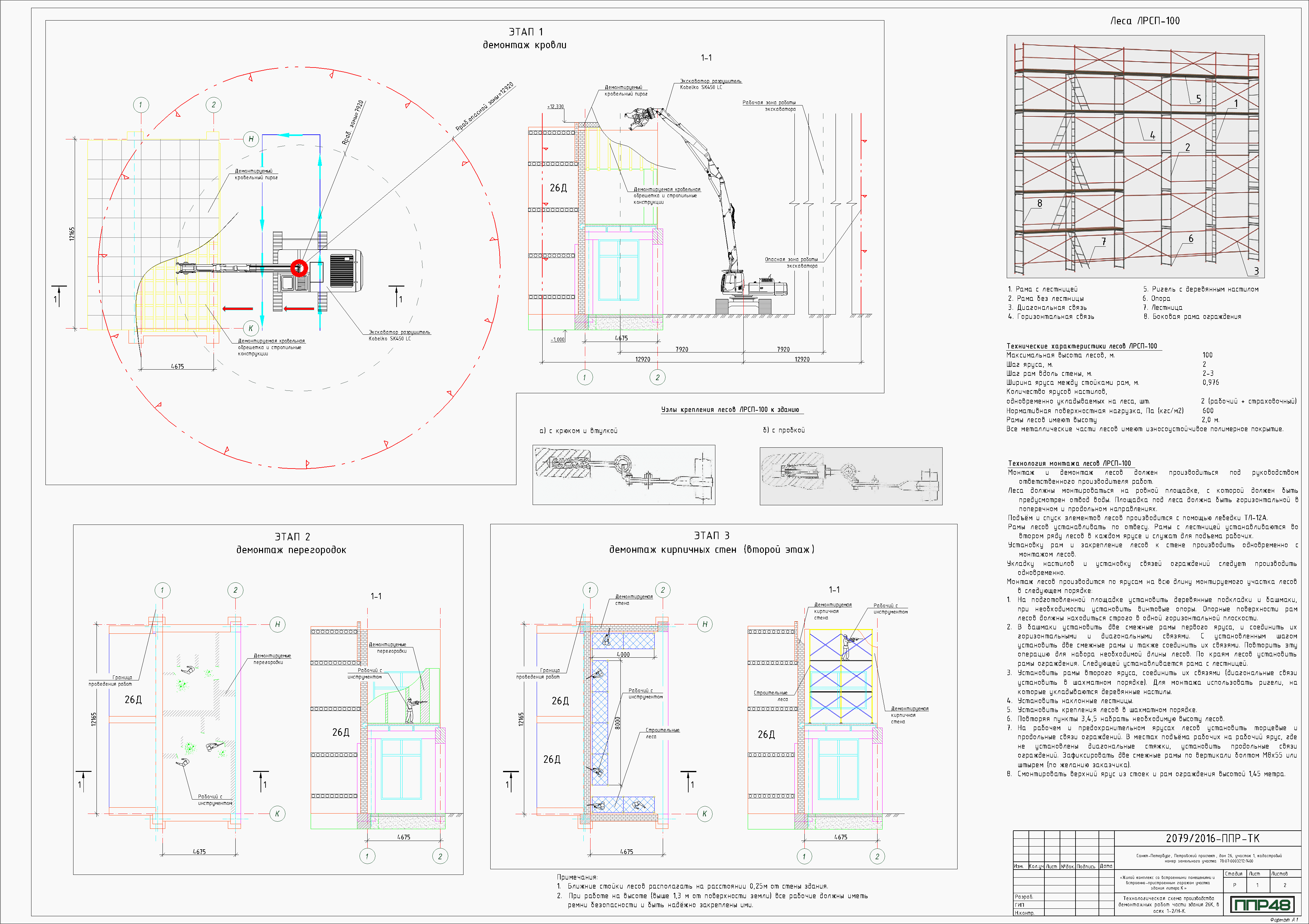
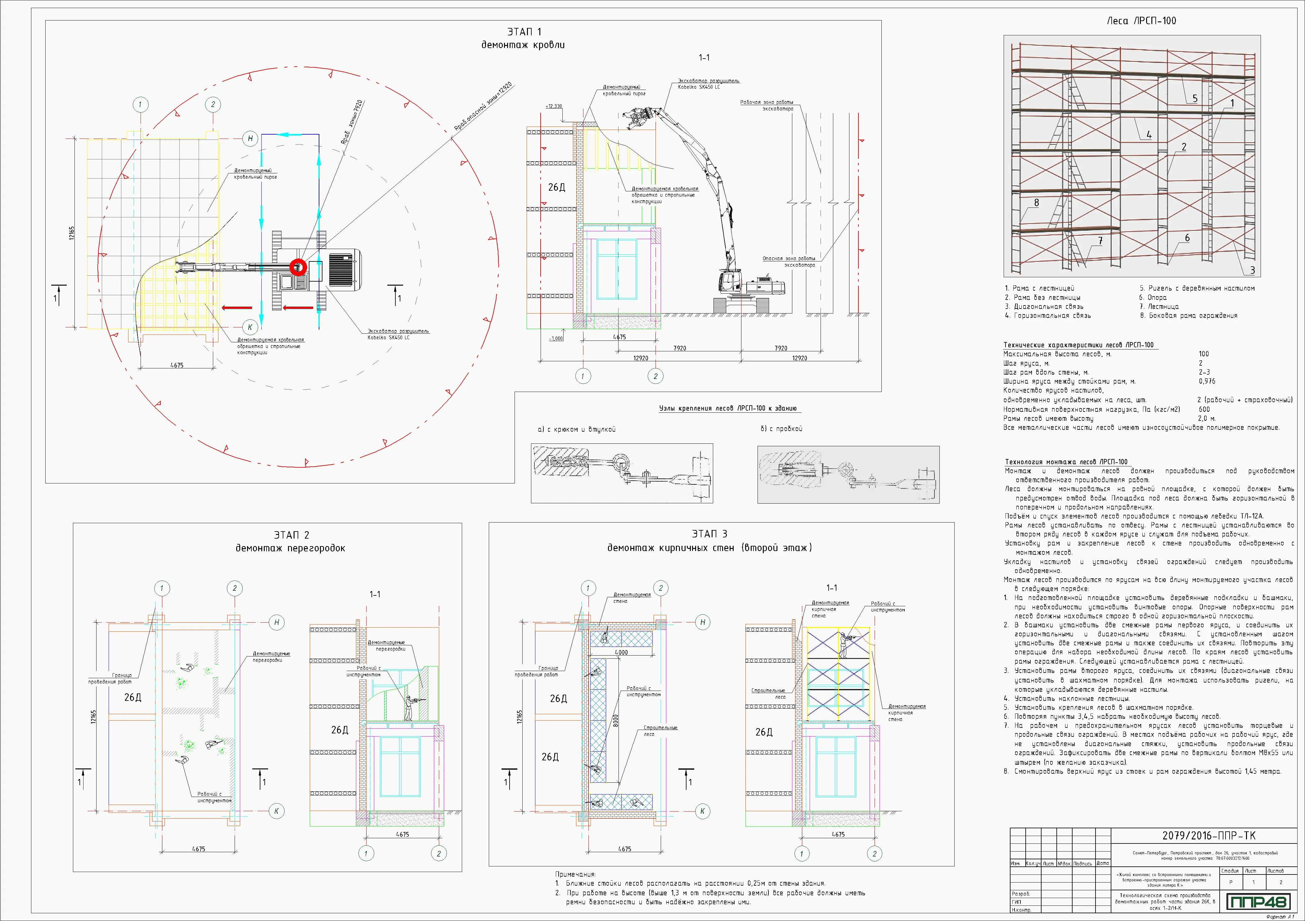
Проект производства работ на демонтаж объекта и его сноса разрабатывается на основе проекта по сносу (ПОД) и прочих исходных материалов . Количество разрабатываемых ППР должно соответствовать кол-ву заданий, обозначенных в ПОД. В процессе разработки ППР при демонтажных работах рекомендуется учитывать положения из СТО НОСТРОЙ 2.33.53-2011. Важной целью проекта является обеспечение безопасности при выполнении демонтажных работ. Поэтому в его состав включают раздел по охране труда при демонтаже и сносе конструкций. Данный раздел должен учитывать опасные ситуации, возникающие вследствие обрушения демонтируемых конструкций при сносе, предусматривать меры по их устранению. Для того, чтобы сохранить зеленые насаждения, находящиеся в зоне осуществления технологических операций при сносе, в документ следует включить раздел по охране окружающей среды.
Технологическая карта на демонтаж сооружения и его сноса
Демонтаж здания производится в соответствии с ППР на демонтаж, в состав которого входят отдельные ТК. Каждая карта предназначается для описания процесса, связанного с демонтажем отдельного конструктивного элемента строения.
Основными факторами, влияющими на принятие решений по демонтажу и сносу являются:
- конструктивные особенности;
- техническое состояние строения;
- состояние внутренних и внешних инженерных сетей;
- наличие действующих инженерных коммуникаций в зоне работ;
- необходимость в сохранности смежных пристроек.
Общие сведения о порядке и правилах выполнения технологических операций содержатся в типовых проектах. В некоторых случаях в ТК на демонтаж элементов включают дополнительные разделы, описывающие методы получения материалов вторичного использования.




































