Мы разрабатываем ППР в промышленной отрасли
От 3х дней. От 35 тысяч рублей. Бесплатное устранение замечаний. 100% гарантия согласования.
Купить экземпляр готового ППР в промышленности можно в режиме "ОНЛАЙН" по ссылке
Купить экземпляр готового ППР в промышленности можно в режиме "ОНЛАЙН" по ссылке
Виды ППР в промышленной отрасли
Основными видами проектов производства работ в промышленной сфере являются:
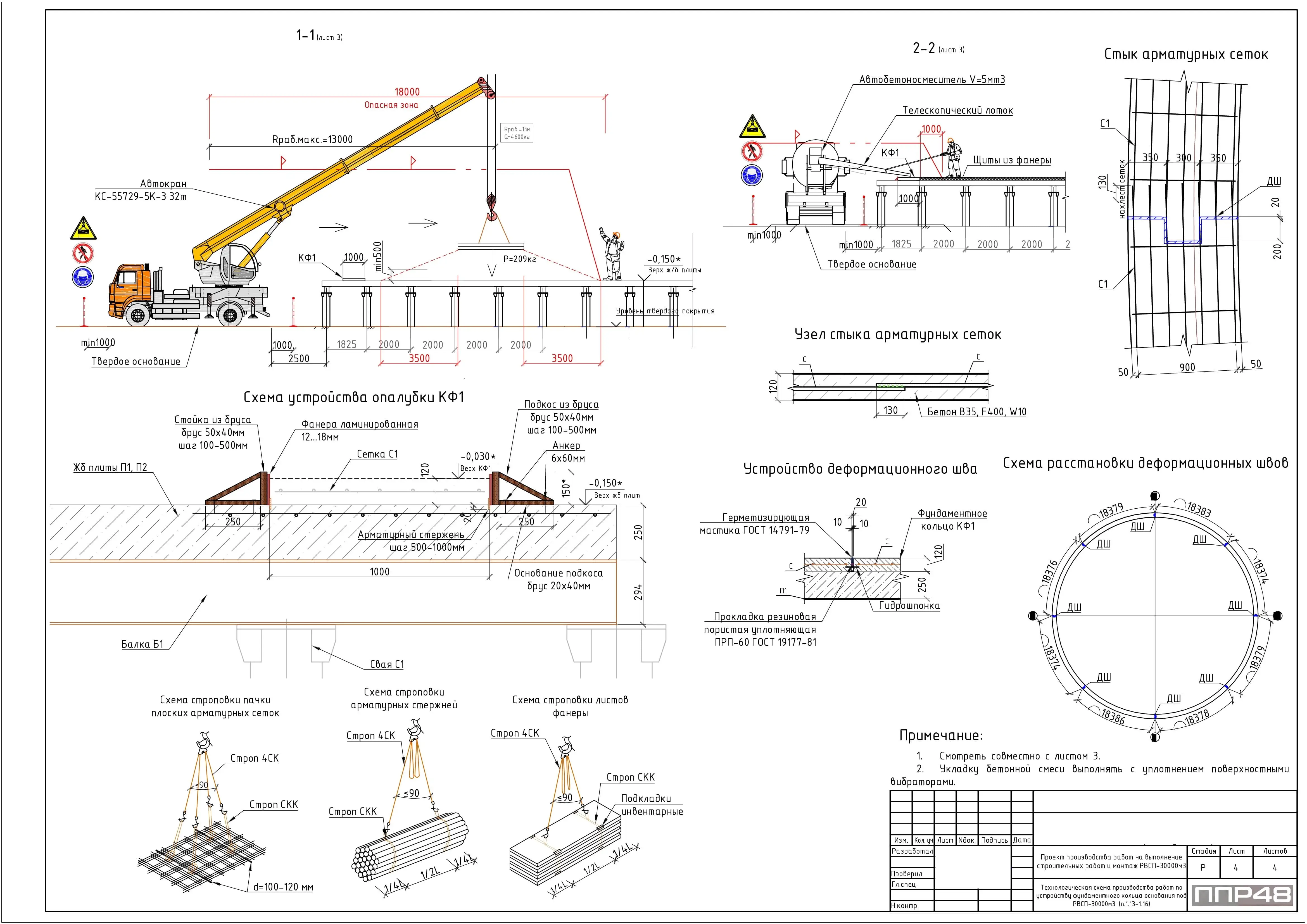
- ППР на монтаж-демонтаж резервуара;
- ППР на монтаж-демонтаж дымовой трубы;
- ППР на монтаж-демонтаж технологического оборудования;
- ППР на возведение градирни;
- ППР на строительство промышленного здания;
- ППР на для объектов нефтегазовой отрасли;
- ППР для объектов компании "РОСНЕФТЬ";
- ППР на монтаж и демонтаж котельный и котельного оборудования
Данную группу проектов объединяет такие факторы, как высокая сложность производства работ, использование тяжелой строительной техники, наличие факторов риска причинения вреда здоровью сотрудников, занятых выполнением СМР.
Сколько стоит разработка ППР на промышленное строительство?
Ремонт
Формат PDF
От 34.000р.
Документ разрабатывается для раскрытия технологии ремонта дымовых труб, резервуаров, силосов, водонапорных башен, градирни.
Строительство
Формат PDF
От 51.000р.
Документ разрабатывается для описания технологии при возведении новых дымовых труб, резервуаров, силосов, водонапорных башен, градирен.






















































