ППР на установку строительных лесов
Работы на высоте, с точки зрения безопасности, требуют особого внимания. Разработка ППР на монтаж лесов позволяет подобрать требуемый тип лесов, определить места установки, повысить безопасность и эффективность ведения работ. Загрузить экземпляр.
Особенности разработки ППР на работы с лесов
Наша компания успешно выполнила более 100 проектов на монтаж строительных лесов для заказчиков из разных регионов РФ, На начальном этапе разработки ППР мы запрашиваем у наших заказчиков исходные данные (ИД). После изучения ИД наши специалисты приступают к подбору конструкций с наиболее подходящими техническими характеристиками для конкретного случая. По способу устройства монтажных соединений, леса бывают следующих типов: хомутовые, рамные, штыревые, клиновые.
Основными факторами, влияющими на выбор строительных лесов, являются:
- Высотная отметка производства работ;
- Геометрическая конфигурация фасада здания или сооружения;
- Основной вид работ, для выполнения которого устанавливаются средства подмащивания;
- Ветровые нагрузки, нагрузки на строительные конструкции и сами леса.
Безопасные работы на высоте возможны только при соблюдении всех требований ППР монтажа лесов.
Что нужно знать о ППР на возведение лесов
В связи с высокой ответственностью в отношении работ, выполняемых с использованием строительных лесов, разработку ППР строит доверять исключительно профессиональной команде, обладающей опытом в строительстве и проектировании.
Специалисты нашей компании хорошо обучены и знают, что установку конструкций стоит выполнять в строгом соответствии с инструкцией завода-изготовителя. Строительные леса необходимо устанавливать таким образом, чтобы их элементы не препятствовали осуществлению основных видов СМР. Проект необходимо выполнять таким образом, чтобы исключить ошибки, которые в последствии могут привести к необходимости в разборке или перемещению элементов уже собранных лесов.
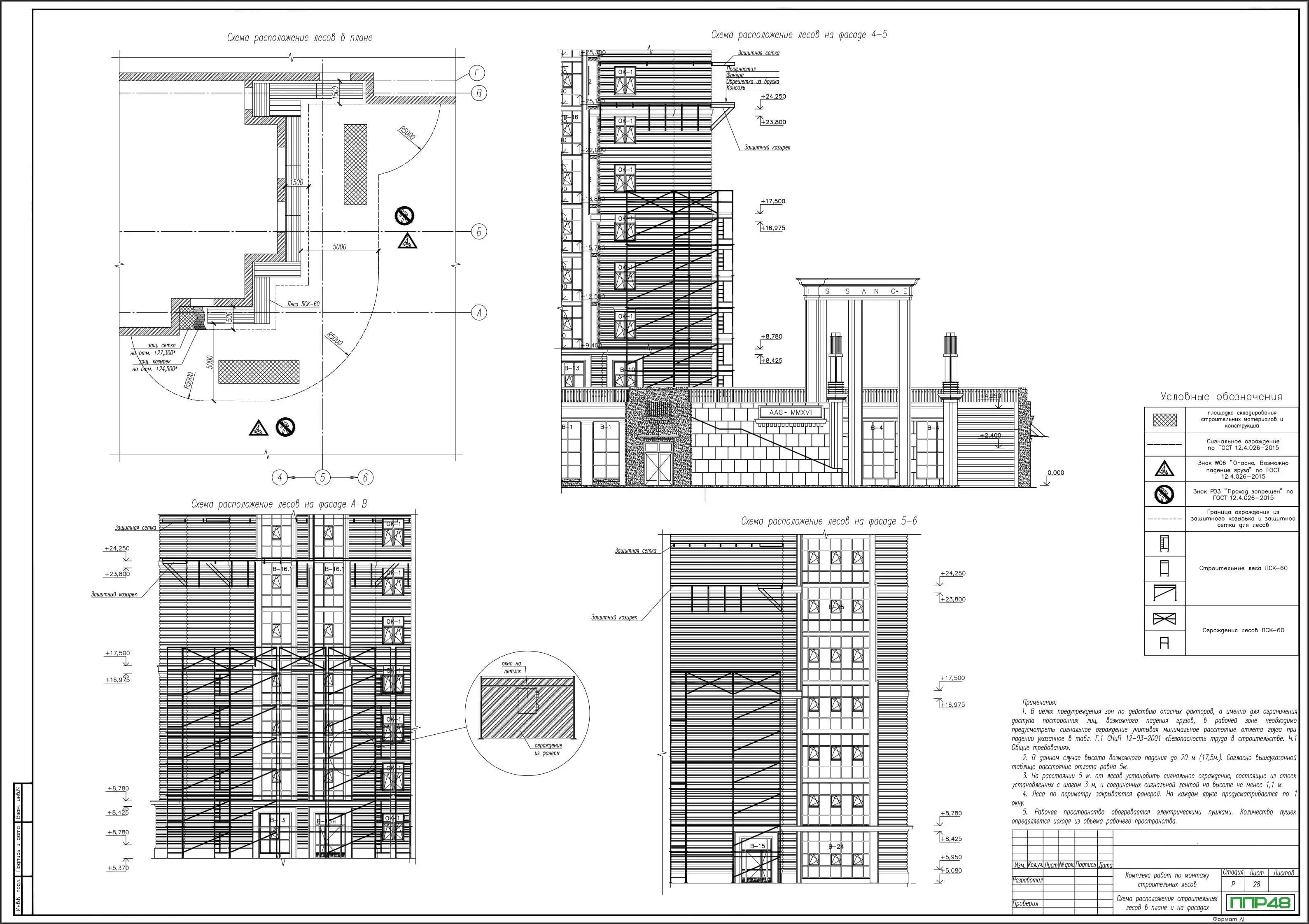
В графической части проекта мы указываем расстановку выбранного типа лесов как на планах, так и на разрезах. В практике нашей компании были случаи, когда кроме монтажных схем установки лесов, нам приходилось выполнять специализированные расчеты на устойчивость и прочность как самих лесов, так и конструкций на которые они устанавливались или к которым они крепились (консольное защемление/установка на стеклянные козырьки и т.д.) Для выполнения простых расчетов специалисты нашей фирмы используют МДС 12-25.2006. Для выполнения более сложных расчетов мы используем специальные программные комплексы, например Lira.
ППР на хомутовые леса
ППР на хомутовые леса — описывает порядок установки/демонтажа, использования хомутовых лесов. Кстати хотелось бы отметить что эти леса - словно пластилин в руках строителей. Ничего не остается кроме как восхищаться конструкцией этих лесов. С их помощью можно выполнять работы на фасадах самых необычных, сложных и причудливых форм. Именно поэтому разработка ППР на данный тип лесов может стоить дороже чем для других типов лесов, например рамных. Специалисты ППР48 в обязательном порядке включают в состав проекта подробные и понятные чертежи, технологические карты, инструкции по охране труда. Также наши проекты содержат указания для эффективного выполнения работ на высоте, в полном соответствии нормативным требованиям.
ППР на монтаж рамных лесов
ППР на монтаж рамных лесов описывает технологию установки рамных лесов. Проект способствует обеспечению безопасности и эффективности ведения работ.
В наших проектах мы указываем:
- характеристики конструкций рамных лесов;
- последовательность операций по монтажу и демонтажу;
- спецификации всех элементов конструкций с указанием их точного кол-ва для последующей закупки;
- меры безопасности для предотвращения несчастных случаев;
- сроки выполнения работ (при необходимости);
- монтажные схемы с размерными привязками.
ППР на леса Вишнева
ППР на монтаж лесов Вишнева – еще один тип проекта, разработкой которого нам приходится заниматься на постоянной основе. Кстати, хотелось бы отметить, что инженер Вишнев, судя по всему, был толковым малым. Его леса очень удобны в использовании. Они практичны и долговечны. Леса имеют жесткую раму, что делает их сборку удобной, а эксплуатацию весьма безопасной. Компания ППР 48 рекомендует использование лесов Вишнева в качестве средств подмащивания для выполнения фасадных работ. Специалисты нашей компании имеют наивысшую компетенцию на рынке оказания услуг по разработке проектов для фасадных работ. При необходимости мы можем выполнить для вас не только ППР, но и рабочий проект на установку лесов.
ППР на штыревые леса
ППР на штыревые леса - довольно часто встречающийся в нашей практике документ, разработкой которого мы занимаемся успешно и качественно. Как и в других случаях данный тип лесов называется так, именно благодаря способу монтажа. Элементы лесов стыкуют друг с другом с помощью специальных штыревых соединителей. Штыревые леса удобны и просты в плане сборки, но имеют свои ограничения. Закажите у нас, за весьма умеренную плату, разработку ППР на штыревые леса и вы получите качественный документ, который будет однозначно не стыдно показывать службе строительного надзора.




































