Компания ППР48 выполнила заказ по изготовлению ППР на работу мостового крана
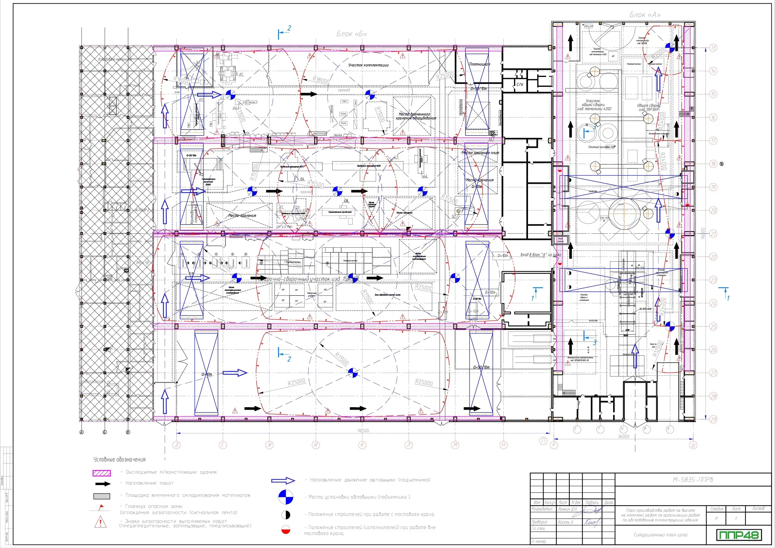
Специалистами нашей компании был разработан Проект Производства Работ на высоте с использованием мостового крана. Для выполнения мероприятий на высоте, связанных с ремонтом или строительством зданий и сооружений, часто используются переносные подъемники, строительные леса, а также мостовые краны. ППР на высоте (ППРв) с использованием мостового крана является эффективным способом выполнения работ на высоте, так как он обеспечивает быстрый и безопасный подъем рабочих и инструментов на нужную высоту.
Для того чтобы рабочий процесс был максимально безопасным, необходимо соблюдать все требования, предъявляемые к работе на высоте, а также к операциям с использованием мостового крана. Необходимо проводить обязательную инструктаж всех сотрудников, задействованных при мероприятиях на высоте, а также обучать их правилам работы с мостовым краном.



























