Пример ППР на демонтаж
Пример ППР на комплекс демонтажных работ в рамках строительства временных зданий и сооружений на территории стадиона в г. Санкт-Петербурге.
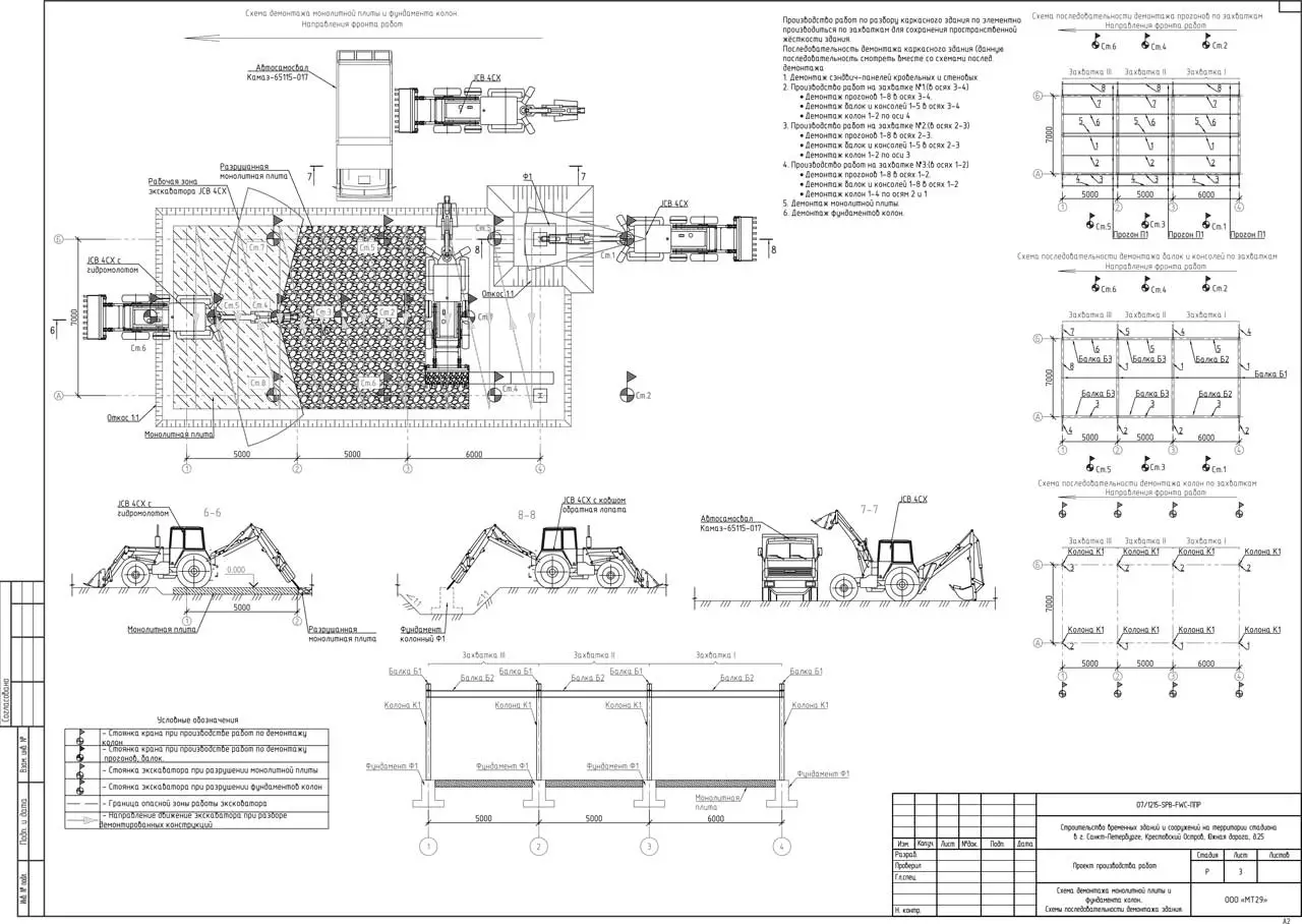
В данном ППР специалистами нашей компании были разработаны технологические карты на демонтаж металлических и железобетонных элементов улицы, ТК на демонтаж инженерных сетей, демонтаж строений методом поэлементарной разборки с использованием автокрана и др.
Также в примерах вы можете увидеть календарный план производства работ, стройгенплан, технологическую схему на демонтаж каркасного здания.
Как вы видите из данного примера "ППР на комплекс демонтажных работ", специалисты ППР48 профессионально справились с поставленной задачей. Если вам необходима разработка ППР на комплекс демонтажных работ, оставьте заявку и наш специалист свяжется с вами для уточнения деталей проекта.















