Пример ППР на монтаж КМ
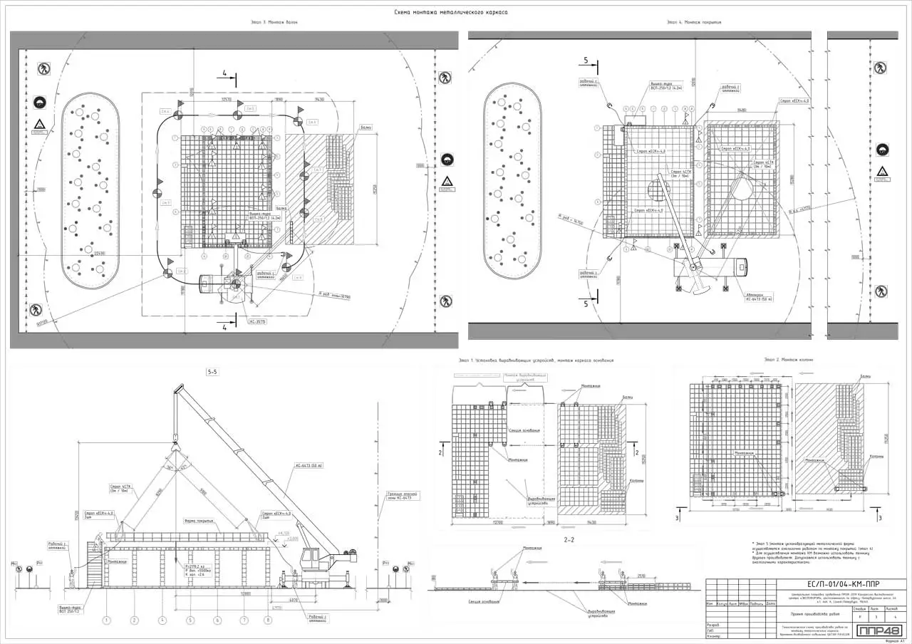
Настоящий проект производства работ (далее по тексту ППР) содержит практические рекомендации, целью которых является оптимизация строительных процессов, связанных с монтажом металлического каркаса временно-возводимого павильона QATAR PAVILION на объекте: центральная площадка проведения ПМЭФ-2019 Конгрессно-выставочного центра «ЭКСПОФОРУМ» Объект расположен по адресу: Петербургское шоссе, 64 к.1, лит. А, Санкт- Петербург. В проекте приведены указания по охране труда, контролю качества, снижению трудовых затрат, технологической последовательности выполнения строительных операций. 2. ППР предназначается для сотрудников строительной организации, осуществляющей работы по монтажу металлоконструкций: ИТР, производителей работ, бригадиров, рабочих. 3. В данный ППР включены следующие виды работ: подготовительные работы, погрузочно- разгрузочне работы, работы по укрупнительной сборке КМ, работы по монтажу каркаса павильона. 4. ППР разработан в соответствии с техническим заданием закзчика, рабочей документацией ЕС/П-01/04-ПЗ, ЕС/П-01/04-КМ-1, ЕС/П-01/04-КМ-2, ЕС/П-01/04-КМ-3. ППР соотвествует требованиям законодательства Российской Федерации и следующих нормативных документов:
-
СП 48.13330.11 Организация строительства;
-
СНИП 12-03-2001 Безопасность труда в строительстве. часть 1. Общие требования;
-
СНИП 12-04-2002 Безопасность труда в строительстве. часть 2. Строительное производство;
-
Приказ Министерства труда и социальной защиты РФ от 1 июня 2015 г. N 336н "Об
утверждении Правил по охране труда в строительстве";
-
ППР МДС 12-81.2007 Методические рекомендации по разработке и оформлению ПОС и ППР;
-
МДС 12-29.2006 Методические рекомендации по разработке и оформлению технологической
карты;
-
СП 12-136-2002 Решения по охране труда и промышленной безопасности в проектах;
организации строительства и проектах производства работ;
-
Федеральный закон Российской Федерации от 30 декабря 2009 г. N 384-ФЗ Технический
регламент о безопасности зданий и сооружений.
-
Федеральный закон от 22.07.2008 N 123-ФЗ Технический регламент о требованиях пожарной
безопасности.
-
Федеральный закон от 27.12.2002 No 184-ФЗ О техническом регулировании.
-
ГОСТ 23118-2012 Конструкции стальные строительные. Общие технические условия.
-
ГОСТ 7566-94 Металлопродукция. Приемка, маркировка, упаковка, транспортирование и
хранение (с Изменением N 1).
-
ГОСТ 9.005-72 ЕСЗКС. Допустимые и недопустимые контакты металлов. Общие требования.
-
ГОСТ 16504-81 Система государственных испытаний продукции. Испытания и контроль
качества продукции. Основные термины и определения (с Изменением N 1).
-
СП 126.13330.2012 Геодезические работы в строительстве. Актуализированная редакция СНиП
3.01.03-84.
-
СП 16.13330.2011 Стальные конструкции. Актуализированная редакция СНиП II-23-81*.
-
СП 53-101-98 Изготовление и контроль качества стальных строительных конструкций.
-
СН 460-74 Временная инструкция о составе и оформлении строительных рабочих чертежей
зданий и сооружений. Раздел 5. Конструкции металлические. Чертежи КМ.
-
СТО 0053-2006 (02494680, 01408401) Монтаж и демонтаж стальных строительных
конструкций. Положения при производстве работ в развитие СНиП 3.03.01-87
-
ПБ 03-440-02 Правила аттестации персонала в области неразрушающего контроля.
Как вы видите из данного примера "ППР на монтаж КМ", специалисты ППР48 профессионально справились с поставленной задачей. Если вам необходима разработка ППР на монтаж металлических конструкций, оставьте заявку и наш специалист свяжется с вами для уточнения деталей проекта.














